立即预约 立即预约
免费定制整装家居

免费定制整装家居

一站置家 全程无忧 一省到底
hide.png

当前位置: 首页 > 装修案例效果图 > 金地悦峰

金地悦峰 110平 美式风格效果图

收藏
案例风格 美式 案例户型 三居 案例面积 110平米
楼盘名称 金地悦峰 设计师 魏东超 案例类型 改善性住宅

设计理念:本案整体风格为美式风格,加入了少许美式乡村元素,复古粗糙的瓷质作旧砖,配上造型特别的美式家具,异域风情浓厚,客厅墙面采用了乳胶漆调色的方式,更好的环保性与装饰效果。

客厅
第1张
第2张
第3张
第4张
第5张
餐厅
第1张
卧室
第1张
厨房
第1张
第2张
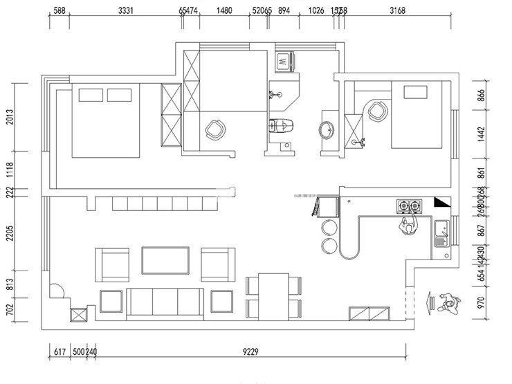
户型图
第1张
  • 案例详情

金地悦峰-110平-美式风格-客厅 (2).jpg 金地悦峰-110平-美式风格-客厅 (3).jpg 金地悦峰-110平-美式风格-客厅 (4).jpg 金地悦峰-110平-美式风格-客厅.jpg 金地悦峰-110平-美式风格-首图.jpg

客厅的着重点应该是在背景墙上,整面的柜子造型,形成了一个展示与储藏兼顾的隔架,无论是放书籍、做工艺品的展示都得心应手,由于用的是深的橡木色,所以为了避免背景墙显得沉闷,将背景墙中心一块留成了空格设计,同时满足了业主想放置投影屏的相法,影幕收起来,就是一面装饰画,客厅家具局部采用了亮色装饰,显得很抢眼,客厅选用了黑色造型铁艺灯装饰,造型优美。

金地悦峰-110平-美式风格-餐厅.jpg

餐厅分为了两个部分,一部分为固定的四人餐桌,家里来客人时便于多人使用,餐桌上方的鹿角装饰,寓意吉祥,给家居空间提供了更美好的展望,餐桌椅深浅色的搭配,更富有新意,餐厅另一部分做了吧台设计,如果两人在家时可以在吧台区域小酌一杯,增加生活的乐趣。

金地悦峰-110平-美式风格-卧室.jpg

卧室墙面同样采用了卡其色乳胶漆装饰墙面,床采用了深色,地面采用了棕色的榆木纹的地板,凹凸的造型质感强烈,彩色的窗帘让素色的空间具有了一点灵动性。

金地悦峰-110平-美式风格-厨房 (2).jpg 金地悦峰-110平-美式风格-厨房.jpg

厨房橱柜采用了L形设计,同时转角设置了吧台区,厨房墙面大胆了采用了彩色砖设计,与白色橱柜搭配,显得清新亮丽,上柜玻璃门的设计更具有通透性,简约的弧线造型设计,让厨房空间更加柔和,吧台区台面采用了深色榆木板,与客户家具颜色相互呼应。

金地悦峰-110平-美式风格-户型图.jpg

案例设计师

魏东超

设计师:魏东超

从业时间:14年

设计理念:在有限的空间里创造无限的可能

预约设计师

算算你家装修多少钱

报名即享丰厚赠品,享半价装修

免费报价
咨询热线:400-656-9909
20190221103704574636.jpg

精品设计案例

20180612134930523248.jpg 服务号二维码.jpg