立即预约 立即预约
免费定制整装家居

免费定制整装家居

一站置家 全程无忧 一省到底
hide.png

当前位置: 首页 > 装修案例效果图 > 瑞士家园

瑞士家园 140平 现代简约风格效果图

收藏
案例风格 现代简约 案例户型 三居 案例面积 140平米
楼盘名称 瑞士家园 设计师 林凤装饰设计 案例类型 改善性住宅

设计理念:本设计采用的是现代轻奢风格,区别于传统轻奢于金属元素的使用上,本案例没有大量使用金属元素,而是在局部处使用金属元素作为点缀。颜色上使用高级灰色调来搭配,使空间生动的同时又不会觉得眼花缭乱。

客厅
第1张
第2张
餐厅
第1张
卧室
第1张
卫生间
第1张
第2张
厨房
第1张
书房
第1张
儿童房
第1张
户型图
第1张
  • 案例详情

S2-瑞士家园-140平-现代-首图.jpg S2-瑞士家园-140平-现代-客厅.jpg

瑞士家园140平三室两厅现代风格林凤装饰的客厅背景墙采用的是石膏线花线上墙,做出一些混搭的感觉。沙发采用的是三加二加一,让空间看起来更丰富有层次感,窗帘采用的是有垂感的绒布材质,色彩上配合客厅空间的整体色彩。

S2-瑞士家园-140平-现代-餐厅.jpg

瑞士家园140平三室两厅现代风格林凤装饰的餐厅选用的是理石台面的餐桌,更符合轻奢质感,选择粉色绒布配合金属质感的餐椅。玻璃吊灯烘托餐厅氛围,增加一日三餐带来的幸福感。

S2-瑞士家园-140平-现代-卧室.jpg

瑞士家园140平三室两厅现代风格林凤装饰的主卧室整体以暖色系为主,床头背景墙用不规则的挂件来烘托整体氛围。做了不对称的床头灯设计,让后期时更贴近不同的生活习惯,并且更有设计感。

S2-瑞士家园-140平-现代-客卫.jpg S2-瑞士家园-140平-现代-卫生间.jpg

瑞士家园140平三室两厅现代风格林凤装饰的卫生间整体为灰色系,洗漱柜使用吊柜设计,让后期卫生间的地面更好的清理打扫。洗漱柜上使用镜柜设计,达到平时的化妆品收纳作用。

S2-瑞士家园-140平-现代-厨房.jpg

瑞士家园140平三室两厅现代风格林凤装饰的厨房为双一字型橱柜,让生活使用方便最大化。其中一面墙用收纳架及洞洞板来代替了原始上柜,灵活使用的同时更显得空间明亮~

S2-瑞士家园-140平-现代-书房.jpg

瑞士家园140平三室两厅现代风格林凤装饰的书房

S2-瑞士家园-140平-现代-儿童房.jpg

瑞士家园140平三室两厅现代风格林凤装饰的儿童房

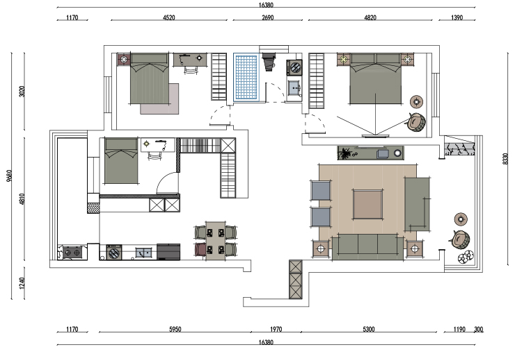
S2-瑞士家园-140平-现代-户型图.jpg

户型图

案例设计师

林凤装饰设计

设计师:林凤装饰设计

从业时间:6年

设计理念:因生活而设计,因设计而美好。

预约设计师

算算你家装修多少钱

报名即享丰厚赠品,享半价装修

免费报价
咨询热线:400-656-9909
20190221103704574636.jpg

精品设计案例

20180612134930523248.jpg 服务号二维码.jpg