立即预约 立即预约
免费定制整装家居

免费定制整装家居

一站置家 全程无忧 一省到底
hide.png

当前位置: 首页 > 装修案例效果图 > 保利香槟国际

保利香槟国际 134平 现代简约风格效果图

收藏
案例风格 现代简约 案例户型 三居 案例面积 134平米
楼盘名称 保利香槟国际 设计师 林凤设计师 案例类型 改善性住宅

设计理念:设计源于生活,源于本真。通过跟业主的沟通,本案定义为现代风格,每一个装饰,每一根线条都有它存在的意义。有效的规划整体布局,合理的使用空间。使每个空间使用最大化,精美化,是我们共同努力的目标,将他打造成一个最温馨的避风港湾。

客厅
第1张
第2张
第3张
餐厅
第1张
卧室
第1张
卫生间
第1张
第2张
书房
第1张
过廊
第1张
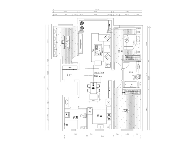
户型图
第1张
  • 案例详情

保利香槟国际-134平-现代风格-客厅.jpg 保利香槟国际-134平-现代风格-客厅2.jpg 保利香槟国际-134平-现代风格-首图.jpg

保利香槟国际134平三室两厅现代风格林凤装饰的客厅大板瓷砖上墙,外加护墙板做造型。美观,大气。沙发墙相呼应护墙板造型,灰色壁布,更能提升整体的美观度,外加橙色做点缀,增加了温馨之感。

保利香槟国际-134平-现代风格-餐厅+厨房.jpg

保利香槟国际134平三室两厅现代风格林凤装饰的餐厅和和客厅相连,体现了整体大气,外加岛台,现代气息更强。厨房做开放式厨房,加大整体空间感。橱柜跟酒柜呼应,更加体现出整体之感。

保利香槟国际-134平-现代风格-主卧室.jpg

保利香槟国际134平三室两厅现代风格林凤装饰的卧室空间和客厅空间相呼应,现代又不失温馨。

保利香槟国际-134平-现代风格-次卫.jpg 保利香槟国际-134平-现代风格-主卫.jpg

保利香槟国际134平三室两厅现代风格林凤装饰的卫生间

保利香槟国际-134平-现代风格-书房.jpg

保利香槟国际134平三室两厅现代风格林凤装饰的书房

保利香槟国际-134平-现代风格-走廊.jpg

保利香槟国际134平三室两厅现代风格林凤装饰的过廊

保利香槟国际-134平-现代风格-户型图.jpg

户型图

案例设计师

林凤设计师

设计师:林凤设计师

从业时间:8年

设计理念:因生活而设计,因设计而美好,让你的生活环境,成为他人眼中风景。

预约设计师

算算你家装修多少钱

报名即享丰厚赠品,享半价装修

免费报价
咨询热线:400-656-9909
20190221103704574636.jpg

精品设计案例

20180612134930523248.jpg 服务号二维码.jpg