立即预约 立即预约
免费定制整装家居

免费定制整装家居

一站置家 全程无忧 一省到底
hide.png

当前位置: 首页 > 装修案例效果图 > 保利茉莉公馆

保利茉莉公馆 100平 现代简约风格效果图

收藏
案例风格 现代简约 案例户型 三居 案例面积 100平米
楼盘名称 保利茉莉公馆 设计师 林凤装饰设计师 案例类型 改善性住宅

设计理念:本案装修风格为现代简约风格

客厅
第1张
第2张
卧室
第1张
第2张
第3张
卫生间
第1张
厨房
第1张
过廊
第1张
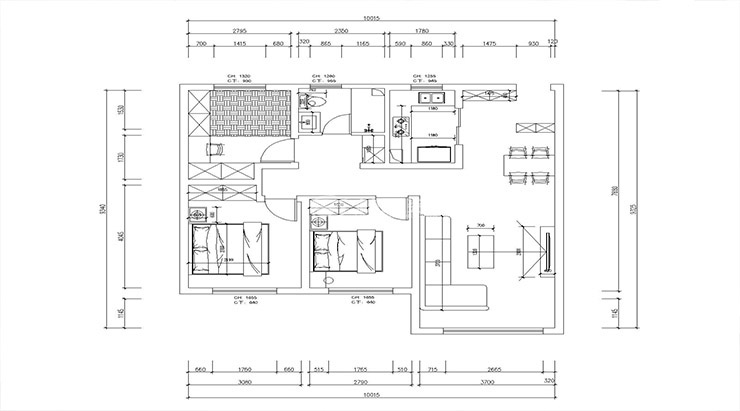
户型图
第1张
  • 案例详情

保利茉莉100平-现代风格-客厅.jpg 保利茉莉100平-现代风格-首图.jpg

客厅墙面电视背景墙采用墙板设计,阳台扩进客厅,用不等式比例划分区域,因为沙发背景墙有弱电箱所以固定了沙发的朝向,客厅墙面采用奶咖色壁纸,显得空间效果比较稳重,沙发与窗帘颜色互相呼应,整体空间既稳重又不失活跃气氛。

保利茉莉100平-现代风格-女儿房.jpg 保利茉莉100平-现代风格-榻榻米房.jpg 保利茉莉100平-现代风格-主卧.jpg

卧室的床选择布艺软床头,背景采用蓝色的设计背景搭配深色窗帘使空间具有活跃感。

保利茉莉100平-现代风格-卫生间.jpg 保利茉莉100平-现代风格-厨房.jpg

厨房墙砖采用爵士白背景加岩板材质橱柜。

保利茉莉100平-现代风格-玄关.jpg 保利茉莉100平-现代风格-平面图.jpg

案例设计师

林凤装饰设计师

设计师:林凤装饰设计师

从业时间:4年

设计理念:将设计融于人性,将家居带入悠闲自在的情境

预约设计师

算算你家装修多少钱

报名即享丰厚赠品,享半价装修

免费报价
咨询热线:400-656-9909
20190221103704574636.jpg

精品设计案例

20180612134930523248.jpg 服务号二维码.jpg