立即预约 立即预约
免费定制整装家居

免费定制整装家居

一站置家 全程无忧 一省到底
hide.png

当前位置: 首页 > 装修案例效果图 > 保利紫荆公馆

保利紫荆公馆 125平 现代简约风格效果图

收藏
案例风格 现代简约 案例户型 三居 案例面积 125平米
楼盘名称 保利紫荆公馆 设计师 林凤设计师 案例类型 改善性住宅

设计理念:本案为现代风格,用简约的线条,搭配出不一样的感觉,多彩的颜色是本案的特点。

客厅
第1张
第2张
第3张
餐厅
第1张
第2张
卧室
第1张
第2张
第3张
厨房
第1张
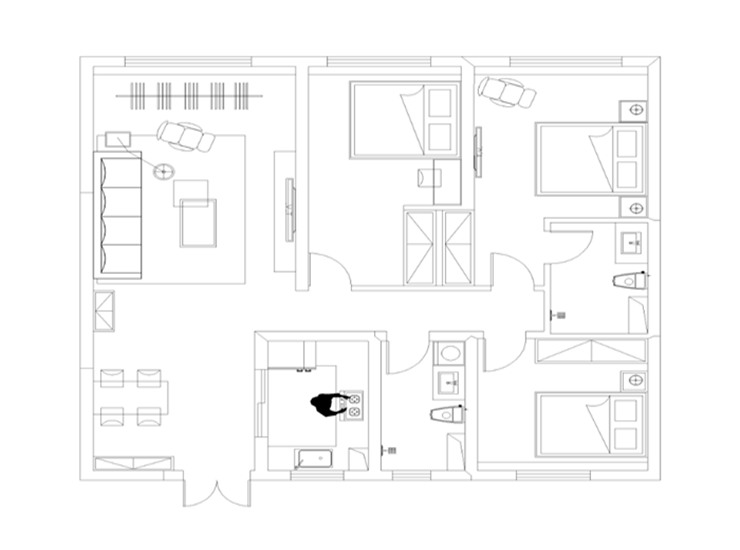
户型图
第1张
  • 案例详情

保利紫荆公馆-125平-现代风格-电视.jpg 保利紫荆公馆-125平-现代风格-沙发.jpg 保利紫荆公馆-125平-现代风格-客厅首图.jpg

本案整体以现代风格为基调,进门处面向室内,一览无余,通透的客餐厅,彰显大气整洁,主流悬挑理石背景成为视觉中心,整体回形吊顶,围合空间,上下呼应。

保利紫荆公馆-125平-现代风格-餐厅.jpg 保利紫荆公馆-125平-现代风格-餐厅2.jpg 保利紫荆公馆-125平-现代风格-儿童房.jpg 保利紫荆公馆-125平-现代风格-儿童房2.jpg 保利紫荆公馆-125平-现代风格-主卧.jpg

因为要抚育孙女孙子,封闭空间的功能性尤为重要,增加储物的同时,满足三代同堂一起生活的需求,每个屋子颜色各异,主题多样。

保利紫荆公馆-125平-现代风格-厨房.jpg

厨卫空间同样满足功能性,两卫一厨,保证私密。

保利紫荆公馆-125平-现代风格-平面.jpg

案例设计师

林凤设计师

设计师:林凤设计师

从业时间:7年

设计理念:空间是生活的一部分,但我们设计一个空间时要考虑的是生活的全部。

预约设计师

算算你家装修多少钱

报名即享丰厚赠品,享半价装修

免费报价
咨询热线:400-656-9909
20190221103704574636.jpg

精品设计案例

20180612134930523248.jpg 服务号二维码.jpg