立即预约 立即预约
免费定制整装家居

免费定制整装家居

一站置家 全程无忧 一省到底
hide.png

当前位置: 首页 > 装修案例效果图 > 华发全运首府

华发全运首府 134平 现代简约风格效果图

收藏
案例风格 现代简约 案例户型 四居 案例面积 134平米
楼盘名称 华发全运首府 设计师 魏东超 案例类型 改善性住宅

设计理念:本案整体以简约风格做为主线,搭配理石石材与壁布,配以暖色的灯光与墙面颜色,打造一种现代温馨的舒适家居空间。

客厅
第1张
第2张
卧室
第1张
第2张
卫生间
第1张
第2张
厨房
第1张
门厅
第1张
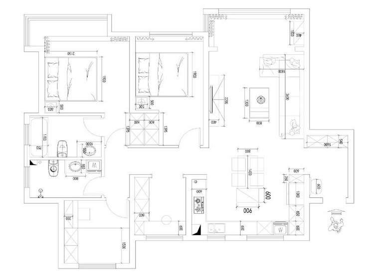
户型图
第1张
华发全运首府-134平-现代风格-客厅.jpg 华发全运首府-134平-现代风格-首图.jpg

客厅与餐厅相连,通过改造将客厅与厨房连通,做敞开式,使空间更宽敞通透,灰色的石材搭配温暖的墙布,冷暖的对比,空间更舒适、温馨,石材上墙的背景墙,采用了返灯光设计,让夜晚的空间更静谧。

华发全运首府-134平-现代风格-次卧.jpg 华发全运首府-134平-现代风格-主卧.jpg

主卧室开间较小,有个比较长的墙面,卧室是L形拐角窗,布局不太规整,由于此种情况为此设计了异形的墙面墙漆色彩,通过两种颜色的不规则拼接让空间缺陷处得以缓解,也增加了空间的色彩性。

华发全运首府-134平-现代风格-卫生间.jpg 华发全运首府-134平-现代风格 -次卫生间.jpg

客卫采光较弱,所以采用了浅色墙砖,爵士白的材质较单调,所以搭配了花色的水磨石瓷砖,让本来冰冷的空间呈现出暖色。

华发全运首府-134平-现代风格-厨房.jpg 华发全运首府-134平-现代风格-玄关.jpg 华发全运首府-134平-现代风格-平面图.jpg

案例设计师

魏东超

设计师:魏东超

从业时间:14年

设计理念:在有限的空间里创造无限的可能

预约设计师

算算你家装修多少钱

报名即享丰厚赠品,享半价装修

免费报价
咨询热线:400-656-9909
20190221103704574636.jpg

精品设计案例

20180612134930523248.jpg 服务号二维码.jpg