立即预约 立即预约
免费定制整装家居

免费定制整装家居

一站置家 全程无忧 一省到底
hide.png

当前位置: 首页 > 装修案例效果图 > 碧桂园太阳城

碧桂园太阳城 134平 现代简约风格效果图

收藏
案例风格 现代简约 案例户型 三居 案例面积 134平米
楼盘名称 碧桂园太阳城 设计师 刘云静 案例类型 改善性住宅

设计理念:与众不同是本案的代名词,简约、低调、独一无二。

客厅
第1张
第2张
第3张
餐厅
第1张
卧室
第1张
卫生间
第1张
第2张
厨房
第1张
书房
第1张
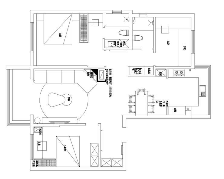
户型图
第1张
碧桂园太阳城-134平-现代轻奢-客厅1.jpg 碧桂园太阳城-134平-现代轻奢-客厅.jpg 碧桂园太阳城-134平-现代轻奢-首图.jpg

本案客厅沙发背景墙墙面采用的是蓝灰色乳胶漆,墙面做了一个异形,所以沙发采用的也是异形转角形式的,沙发转角处做了一组装饰柜子。

碧桂园太阳城-134平-现代轻奢-餐厅.jpg

餐厅墙面和棚面没有做任何造型,通过餐厅看望可客厅位置还能看到一个组合柜子的形式。

碧桂园太阳城-134平-现代轻奢-主卧.jpg

主卧室的衣帽间是按照背靠背的柜子形式来做的靠近卧室的柜子做400宽,平时放一些小件的衣物,靠近卫生间做的是600宽,平时作为挂衣区。

碧桂园太阳城-134平-现代轻奢-卫生间.jpg 碧桂园太阳城-134平-现代轻奢-卫生间1.jpg

卫生间采用的是干湿分离的形式,把手盆和洗衣机移出来,这样卫生间整体看着就更宽敞了。

碧桂园太阳城-134平-现代轻奢-厨房.jpg

本案是封闭式厨房,采用四联动的掉滑极窄边玻璃拉门,整体看着非常精致有档次。

碧桂园太阳城-134平-现代轻奢-书房.jpg 碧桂园太阳城-134平-现代轻奢-平面图.jpg

案例设计师

刘云静

设计师:刘云静

从业时间:10年

设计理念:在我的世界里,设计不仅是视觉的艺术,更是情感的传递与文化的融合。

预约设计师

算算你家装修多少钱

报名即享丰厚赠品,享半价装修

免费报价
咨询热线:400-656-9909
20190221103704574636.jpg

精品设计案例

20180612134930523248.jpg 服务号二维码.jpg