立即预约 立即预约
免费定制整装家居

免费定制整装家居

一站置家 全程无忧 一省到底
hide.png

当前位置: 首页 > 装修案例效果图 > 绿城翡翠园

绿城翡翠园 160平 现代简约风格效果图

收藏
案例风格 现代简约 案例户型 四居 案例面积 160平米
楼盘名称 绿城翡翠园 设计师 刘云静 案例类型 改善性住宅

设计理念:将传统东方文化与西方美学完美结合的产物。

客厅
第1张
第2张
第3张
卧室
第1张
第2张
卫生间
第1张
厨房
第1张
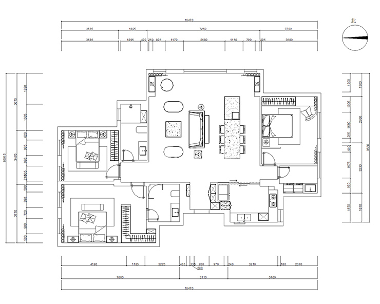
户型图
第1张
绿城翡翠园-130-现代-客厅.jpg 绿城翡翠园-130-现代-客厅2.jpg 绿城翡翠园-130-现代-首图.jpg

本案客厅棚面用的无主灯设计磁吸轨道灯和线性灯的完美结合使得客厅现代感更强一些。

绿城翡翠园-130-现代-卧室2.jpg 绿城翡翠园-130-现代-卧室.jpg

本案卧室才用的是中式的风格,护墙板和硬包结合,带有中式元素的挂画,中式元素的吊棚、灯具、中式元素的衣柜。

绿城翡翠园-130-现代-卫生间.jpg

卫生间采用采用哑光灰色质感瓷砖和水磨石相结合,坐便区域墙面和地面采用水磨石作为分割,使整个卫生间变得更加大气。

绿城翡翠园-130-现代-厨房.jpg

本案是封闭式厨房木质感的橱柜搭配理石质感的墙砖,让整个厨房变得敞亮大气。

绿城翡翠园-130-现代-平面图.jpg

案例设计师

刘云静

设计师:刘云静

从业时间:10年

设计理念:在我的世界里,设计不仅是视觉的艺术,更是情感的传递与文化的融合。

预约设计师

算算你家装修多少钱

报名即享丰厚赠品,享半价装修

免费报价
咨询热线:400-656-9909
20190221103704574636.jpg

精品设计案例

20180612134930523248.jpg 服务号二维码.jpg