立即预约 立即预约
免费定制整装家居

免费定制整装家居

一站置家 全程无忧 一省到底
hide.png

当前位置: 首页 > 装修案例效果图 > 中粮堂悦

中粮堂悦 135平 现代简约风格效果图

收藏
案例风格 现代简约 案例户型 三居 案例面积 135平米
楼盘名称 中粮堂悦 设计师 林凤装饰 案例类型 改善性住宅

设计理念:空间设计给我们带来的不仅仅是衣食住行的刚需,也是能体现我们生活品质的一个重要因素,在家里我们不仅要有家里的欢声笑语也要有安静思考人生的元素。

客厅
第1张
第2张
第3张
餐厅
第1张
卧室
第1张
第2张
卫生间
第1张
第2张
厨房
第1张
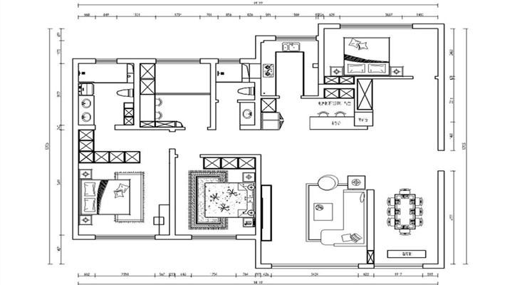
户型图
第1张
中粮堂悦-135-现代简约风格- 客餐厅_.jpg 中粮堂悦-135-现代简约风格- 客厅_.jpg 中粮堂悦-135-现代简约风格-客餐厅(1)__副本.jpg

客厅设计符合业主所有的条件是所有空间的核心,也是本次设计的一个中心点。给人一种奢华但是很朴实简单的氛围非常符合当代年轻人的整体风格与常态。

中粮堂悦-135-现代简约风格- 餐厅_.jpg

餐厅搭配配合着整体,颜色与材质的选择、给人一种朴实无华的感觉,给人以大气的感觉。

中粮堂悦-135-现代简约风格- 主卧_.jpg 中粮堂悦-135-现代简约风格- 榻榻米_.jpg

卧室的设计不夸张,所有的家具都与整体搭配,从保证整个空间的协调与美观。

中粮堂悦-135-现代简约风格- 次卫_.jpg 中粮堂悦-135-现代简约风格- 主卫 (2)_.jpg 中粮堂悦-135-现代简约风格-厨房_.jpg

厨房是家里面最为活跃的空间,采用了封闭式厨房的形式,使用拉门更加通透。使用的墙砖与整体地砖的结合,橱柜选择了和餐桌餐椅一样的颜色和样式进行搭配。

中粮堂悦-135-现代简约风格_副本.jpg

三室两厅一厨两卫,高层,整体风格采用了现代轻奢,以简约的风格和和精致的软装搭配给空间营造一种不一样的质感,其中包含了功能性和细节性,运用色彩打造出轻奢的感觉。

案例设计师

林凤装饰

设计师:林凤装饰

从业时间:5年

设计理念:设计是一种创造性活动,它的目的是要形成和调整对象---空间环境,在这个过程中使其职能的方面和审美方面达成统一。

预约设计师

算算你家装修多少钱

报名即享丰厚赠品,享半价装修

免费报价
咨询热线:400-656-9909
20190221103704574636.jpg

精品设计案例

20180612134930523248.jpg 服务号二维码.jpg