立即预约 立即预约
免费定制整装家居

免费定制整装家居

一站置家 全程无忧 一省到底
hide.png

当前位置: 首页 > 装修案例效果图 > 万达公园one

万达公园one 130平 现代简约风格效果图

收藏
案例风格 现代简约 案例户型 三居 案例面积 130平米
楼盘名称 万达公园one 设计师 沈阳林凤装饰 案例类型 改善性住宅

设计理念:去掉多余的装饰呈现出空间本身的质感和美感,用最少的元素体现出最多的空间感受。

客厅
第1张
第2张
餐厅
第1张
卧室
第1张
第2张
卫生间
第1张
厨房
第1张
第2张
儿童房
第1张
门厅
第1张
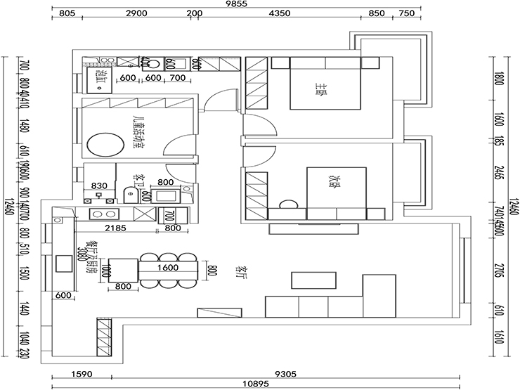
户型图
第1张
s5-吕亮-万达公园one-113平-极简-首图.jpg s5-吕亮-万达公园one-113平-极简-客厅2.jpg

在色彩的选择上,客厅整体色彩选择纯度偏低,用橙色窗帘和壁画作为点缀没有过多的颜色修饰,在空间的材质上选择木质和理石搭配,提升了空间的高级感,棚面无主灯设计使空间更加简洁

s5-吕亮-万达公园one-113平-极简-餐厅.jpg

餐厅最有特点的是去除了生活中常见的餐桌,还设置了一个岛台,提升了生活品味,也便于日常的使用。

s5-吕亮-万达公园one-113平-极简-次卧1.jpg s5-吕亮-万达公园one-113平-极简-主卧.jpg

共有三个卧室,其中一个卧室是作为孩子的活动空间整体颜色以粉色为主,让空间充满童趣,剩余两个卧室作为休息睡眠的空间没有过多的颜色修饰,整体饱和度偏低,都选用白色和木色搭配让空间看起来柔和,舒适,希望为业主提供更加柔和的睡眠空间。

s5-吕亮-万达公园one-113平-极简-卫生间.jpg

此空间有两个卫生间一个空间设置了浴屏做了干湿分离的处理,极大的解决了卫生间潮湿难打理的问题,让业主在每一处的设计细节中感受便利。另一个卫生间主要以泡澡和洗衣为主,设置了一个浴缸,为将来即将诞生的宝宝提供了便利的洗浴空间。

s5-吕亮-万达公园one-113平-极简-厨房.jpg s5-吕亮-万达公园one-113平-极简-厨房2.jpg

厨房整体采用开放式处理,墙面采用白色的墙面处理,搭配灰色的柜体,黑、白、灰的色彩搭配让原本油腻的厨房空间变得色彩清新,相信在此业主会有更享受的烹饪体验

s5-吕亮-万达公园one-113平-极简-儿童活动室.jpg s5-吕亮-万达公园one-113平-极简-玄关.jpg s5-吕亮-万达公园one-113平-极简.jpg

案例设计师

沈阳林凤装饰

设计师:沈阳林凤装饰

从业时间:12年

设计理念:我们不是艺术家,我们只是用艺术的手法来做实用的东西。

预约设计师

算算你家装修多少钱

报名即享丰厚赠品,享半价装修

免费报价
咨询热线:400-656-9909
20190221103704574636.jpg

精品设计案例

20180612134930523248.jpg 服务号二维码.jpg