立即预约 立即预约
免费定制整装家居

免费定制整装家居

一站置家 全程无忧 一省到底
hide.png

当前位置: 首页 > 装修案例效果图 > 颐盛壹号公馆-现代简约

颐盛壹号公馆-现代简约 135平 现代简约风格效果图

收藏
案例风格 现代简约 案例户型 三居 案例面积 135平米
楼盘名称 颐盛壹号公馆 设计师 白涵琦 案例类型 改善性住宅

设计理念:本案是现代简约风格,整个空间没有丰富的色彩,是黑白灰的搭配,另外在一些小东西上搭配一点明亮的色彩作为空间色彩的点缀。业主比较年轻需要一个儿童房,想让空间高级一些,要现代简约风格,喜欢黑白灰的搭配。

客厅
第1张
第2张
第3张
餐厅
第1张
卧室
第1张
卫生间
第1张
厨房
第1张
书房
第1张
儿童房
第1张
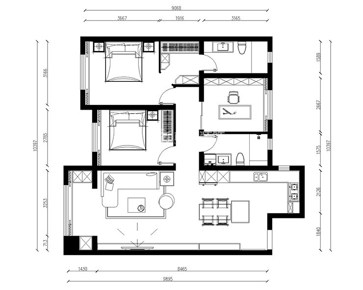
户型图
第1张
颐盛壹号公馆 135平 现代  首图.jpg 颐盛壹号公馆 135平 现代 客厅 .jpg 颐盛壹号公馆 135平 现代 客厅.jpg

客厅与餐厅厨房相连接,沙发墙面造型都是黑白灰的色彩,沙发背景墙做了墙板造型和木格栅拼接,赔了一个红色的小单椅,让空间颜色没那么单调,阳台做了柜子增加储物空间,电视背景墙做了理石的凸显高级周围搭配虚光灯带很有感觉。

颐盛壹号公馆 135平 现代 餐厅.jpg

餐厅和厨房在一个空间,餐厅与客厅中间有个走廊做出了空间划分,餐桌与岛台做成一体的,做了理石灰色。

颐盛壹号公馆 135平 现代  主卧.jpg

主卧室同样没有出挑的颜色,为了与卫生间分离做出了一个衣帽间的空间出来,隔离了主卧与卫生间,还多出了一个储物空间,主卧采用暖灰色地板让主卧空间有了一点温度,灰色的壁布铺贴床头浅灰色铺贴其他墙面有了一定的层次感。

颐盛壹号公馆 135平 现代  主卫生间.jpg

卫生间用比较深的灰色大纹理的瓷砖进行铺贴,做了砌筑浴缸与卫生间融为一体,木质的浴室柜让卫生间空间更有质感。

颐盛壹号公馆 135平 现代  厨房.jpg

厨房做了开放式厨房,整体黑色的橱柜搭配虚光灯线,表现了业主想要的高级感。

颐盛壹号公馆 135平 现代  书房.jpg 颐盛壹号公馆 135平 现代  儿童房.jpg

儿童房做了星空的床头背景墙,做出了吸引小孩的图案,暖黄色的地板颜色,做了门板有造型的衣柜,孩子有独立的储物空间。

颐盛壹号公馆 135平 现代  户型图.jpg

案例设计师

白涵琦

设计师:白涵琦

从业时间:10年

设计理念:设计实现客户家居梦想

预约设计师

算算你家装修多少钱

报名即享丰厚赠品,享半价装修

免费报价
咨询热线:400-656-9909
20190221103704574636.jpg

精品设计案例

20180612134930523248.jpg 服务号二维码.jpg