立即预约 立即预约
免费定制整装家居

免费定制整装家居

一站置家 全程无忧 一省到底
hide.png

当前位置: 首页 > 装修案例效果图 > 荣盛锦绣御府-现代风格

荣盛锦绣御府-现代风格 117平 现代简约风格效果图

收藏
案例风格 现代简约 案例户型 三居 案例面积 117平米
楼盘名称 荣盛锦绣御府 设计师 仲崇彤 案例类型 儿童房

设计理念:本案设计主要体现实用简约得设计思路,3口之家得改善住房,整体不想投入太多,看着舒服舒适得整体想法贯穿着整体设计理念。本案主要3口之家,小孩4岁,业主夫妻俩都是上班族,孩子得爷爷奶奶可能会来照顾孩子。

客厅
第1张
第2张
第3张
卧室
第1张
第2张
第3张
卫生间
第1张
第2张
厨房
第1张
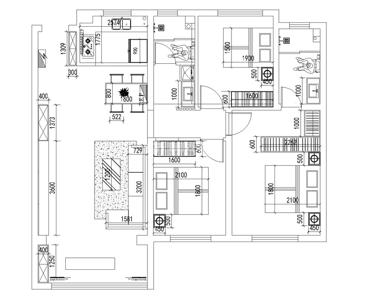
户型图
第1张
S1-仲崇彤-荣盛锦绣御府-117平-现代风格-客厅.jpg S1-仲崇彤-荣盛锦绣御府-117平-现代风格-客厅2.jpg S1-仲崇彤-荣盛锦绣御府-117平-现代风格-首图.jpg

客厅色调主要体现白色的理石背景墙,于深色金属收边线得完美结合,背景墙上方整体边棚,简约而不简单,搭配筒灯设计,突显电视背景墙整体效果。

S1-仲崇彤-荣盛锦绣御府-117平-现代风格-次卧室.jpg S1-仲崇彤-荣盛锦绣御府-117平-现代风格-次卧室2.jpg S1-仲崇彤-荣盛锦绣御府-117平-现代风格-主卧室.jpg

主卧室墙面搭配深色墙板和硬包得整体搭配,串色得窗帘配饰,与床艺得搭配,棚面垂下吊灯,给夜间得主卧室增加一些情调。

S1-仲崇彤-荣盛锦绣御府-117平-现代风格-卫生间.jpg S1-仲崇彤-荣盛锦绣御府-117平-现代风格-卫生间2.jpg

卫生间设计采用的整体灰砖配色,定制手台及洗衣机,让台面得空间更丰富,储物空间更实用。

S1-仲崇彤-荣盛锦绣御府-117平-现代风格-厨房.jpg

厨房采用大理石爵士白纹路瓷砖,搭配灰色橱柜门板,以及白色橱柜台面,让整体厨房得空间显得更明亮,对厨艺要求高得会非常喜欢这个厨房。

S1-仲崇彤-荣盛锦绣御府-117平-现代风格-客厅-户型图.jpg

案例设计师

仲崇彤

设计师:仲崇彤

从业时间:15年

设计理念:设计就是着重于点、线、面的灵活运用,把整个环境营造出家的温馨。

预约设计师

算算你家装修多少钱

报名即享丰厚赠品,享半价装修

免费报价
咨询热线:400-656-9909
20190221103704574636.jpg

精品设计案例

20180612134930523248.jpg 服务号二维码.jpg