立即预约 立即预约
免费定制整装家居

免费定制整装家居

一站置家 全程无忧 一省到底
hide.png

当前位置: 首页 > 装修案例效果图 > 金辉优步学府-现代简约

金辉优步学府-现代简约 110平 现代简约风格效果图

收藏
案例风格 现代简约 案例户型 三居 案例面积 110平米
楼盘名称 金辉优步学府 设计师 林凤设计师 案例类型 改善性住宅

设计理念:三室两厅一厨两卫,高层,整体风格采用了现代轻奢,以简约的风格和和精致的软装搭配给空间营造一种不一样的质感,其中包含了功能性和细节性,运用色彩打造出轻奢的感觉。
喜欢现代风格,却又不失稳重的感觉,现代轻奢是最适合的风格,希望通过不一样的装修风格来彰显不同的生活品味。

客厅
第1张
第2张
第3张
卧室
第1张
第2张
卫生间
第1张
第2张
厨房
第1张
门厅
第1张
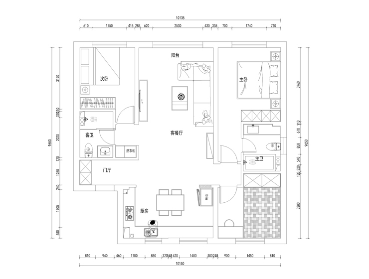
户型图
第1张
金辉优步学府-110平-现代风格-电视背景墙.jpg 金辉优步学府-110平-现代风格-沙发背景墙.jpg 金辉优步学府-110平-现代风格-首图.jpg

在色彩的选择上,以灰白色为基调,灰色的沙发,背景墙,电视柜,用绿色的软装配饰进行色彩上的点缀,简单而不乏质感,客厅的水晶灯在无意之间凸显了空间的精致感,低调而奢华。

金辉优步学府-110平-现代风格-客卧.jpg 金辉优步学府-110平-现代风格-主卧.jpg

卧室是人们休息的空间,主卧和次卧在低调的灰色主调中,借助软装配饰来丰富空间,使用了后现代凤的挂画提升了空间的质感,衣柜,床头柜的选择上采用了和整体色彩相搭配的颜色,门板材质选择了玻璃和黄铜线条进行提亮,玻璃材质折射出的倒影,带来浪漫和高雅的情调,而客卧则采用了榻榻米形式,保证在有多个客人时也能有足够的空间,也增加了储物空间,实现了功能性和美观性为一体。

金辉优步学府-110平-现代风格-客卫.jpg 金辉优步学府-110平-现代风格-主卫.jpg

主卫为了搭配主卧的色彩,墙砖采用了灰色大理石纹,洗手台采用上下分隔形式,美观的同时增加了功能性,主卫是浴缸,在结束了一天忙碌的生活后,泡在浴缸里缓解一天的疲惫是一件很满足的事

金辉优步学府-110平-现代风格-厨房.jpg

厨房是生活气息最浓厚的地方,采用了开放式厨房的形式,使空间变得更加开阔,同样使用了白色大理石纹的墙砖,与客厅灰色进行呼应,橱柜选择了和餐桌餐椅一样的颜色和样式进行搭配。

金辉优步学府-110平-现代风格-门厅.jpg 金辉优步学府-110平-现代风格-平面图.jpg

案例设计师

林凤设计师

设计师:林凤设计师

从业时间:6年

设计理念:专注于一件事,并把他做到极致,

预约设计师

算算你家装修多少钱

报名即享丰厚赠品,享半价装修

免费报价
咨询热线:400-656-9909
20190221103704574636.jpg

精品设计案例

20180612134930523248.jpg 服务号二维码.jpg