立即预约 立即预约
免费定制整装家居

免费定制整装家居

一站置家 全程无忧 一省到底
hide.png

当前位置: 首页 > 装修案例效果图 > 金辉江山云著-现代简约

金辉江山云著-现代简约 146平 现代简约风格效果图

收藏
案例风格 现代简约 案例户型 三居 案例面积 146平米
楼盘名称 金辉江山云著 设计师 林凤设计师 案例类型 改善性住宅

设计理念:业主为年轻夫妻,育有一女,整体为美式风格,以金色、白色调为主,使人感觉有文化感,贵族气。

客厅
第1张
第2张
餐厅
第1张
卧室
第1张
第2张
第3张
卫生间
第1张
第2张
厨房
第1张
书房
第1张
衣帽间
第1张
门厅
第1张
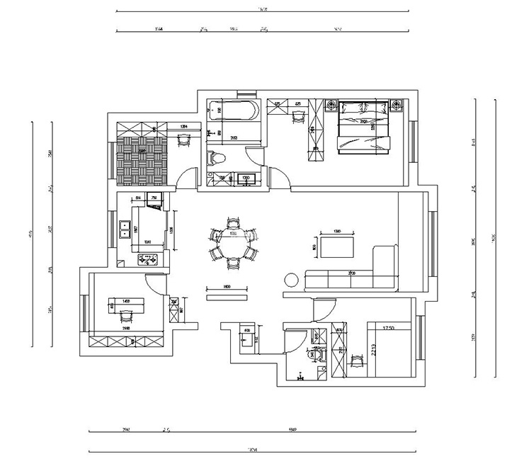
户型图
第1张
保利茉莉公馆-146平-现代风格-客厅.jpg 金辉江山云著-133平-美式风格-首图.jpg

客厅背景墙采用大理石与木饰面碰撞质感,彰显业主的文化,茶几采用理石台面,金色茶几腿,彰显生活的时尚,给人一种气势磅礴的感觉。

保利茉莉公馆-146平-现代风格-餐厅.jpg

餐厅与客厅的结合,金属质感的桌腿,大理石台面与整体风格相互呼应

保利茉莉公馆-146平-现代风格-次卧.jpg 保利茉莉公馆-146平-现代风格-次卧2.jpg 保利茉莉公馆-146平-现代风格-主卧.jpg

主卧背景墙采用软包材质,天花加以美式独有的石膏线点缀,使之卧室整体给人一种高级的感觉

保利茉莉公馆-146平-现代风格-客卫.jpg 保利茉莉公馆-146平-现代风格-主卫.jpg

卫生间瓷砖为白色材质,独立的浴缸,然业主在劳累了一天之后能舒服的放松自己,墙面配以金色点缀的挂画,体现美式风格的情调。

保利茉莉公馆-146平-现代风格-厨房.jpg

封闭式厨房,让业主能更有效的发挥、展示自己的厨艺,毫不影响油烟进入客厅,厨房柜门采用凹凸感觉的门板,正好迎合了当下人群对生活方式的需求。

保利茉莉公馆-146平-现代风格-书房.jpg 保利茉莉公馆-146平-现代风格-衣帽间.jpg 保利茉莉公馆-146平-现代风格-门厅.jpg 保利茉莉公馆-146平-现代风格-平面图.jpg

案例设计师

林凤设计师

设计师:林凤设计师

从业时间:10年

设计理念:以人为本

预约设计师

算算你家装修多少钱

报名即享丰厚赠品,享半价装修

免费报价
咨询热线:400-656-9909
20190221103704574636.jpg

精品设计案例

20180612134930523248.jpg 服务号二维码.jpg