立即预约 立即预约
免费定制整装家居

免费定制整装家居

一站置家 全程无忧 一省到底
hide.png

当前位置: 首页 > 装修案例效果图 > 颐盛壹号公馆-现代

颐盛壹号公馆-现代 85平 现代简约风格效果图

收藏
案例风格 现代简约 案例户型 二居 案例面积 85平米
楼盘名称 颐盛壹号公馆 设计师 刘云静 案例类型 改善性住宅

设计理念:本案设计整体以温馨,舒适为主导,为业主打造一个清新自然,干净之美的家。

客厅
第1张
第2张
第3张
餐厅
第1张
卧室
第1张
第2张
卫生间
第1张
厨房
第1张
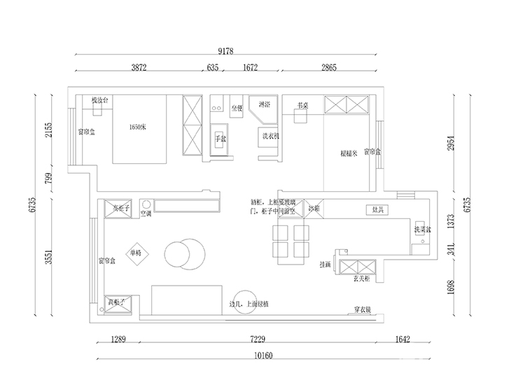
户型图
第1张
颐盛壹号公馆-85平-现代风格-客厅.jpg 颐盛壹号公馆-85平-现代风格-客厅 背景墙.jpg 颐盛壹号公馆-85平-现代风格-客厅背景墙.jpg

客厅整体色调以黑白灰为主,米白色的沙发与主色调形成了对比,白色背景墙更是凸显高级感

颐盛壹号公馆-85平-现代风格-客餐厅.jpg

现代气息浓厚,餐桌加入了一些灰色和橙色组成的餐椅与客厅的米白色更加协调。

颐盛壹号公馆-85平-现代风格-次卧.jpg 颐盛壹号公馆-85平-现代风格-主卧.jpg

卧室家具富有时尚感,现代气息明显。床头小梳妆台令卧室整体更加温馨和谐。

颐盛壹号公馆-85平-现代风格-卫生间.jpg

卫生间采用灰色为主,地面用了大量线条白瓷砖,十分干净简洁,充满现代感。

颐盛壹号公馆-85平-现代风格-厨房.jpg

开放式厨房,厨柜采用灰色,浅灰色理石的地砖和墙砖,让整个厨房空间整洁,干净。

颐盛壹号公馆-85平-现代风格-布局图.jpg

案例设计师

刘云静

设计师:刘云静

从业时间:10年

设计理念:在我的世界里,设计不仅是视觉的艺术,更是情感的传递与文化的融合。

预约设计师

算算你家装修多少钱

报名即享丰厚赠品,享半价装修

免费报价
咨询热线:400-656-9909
20190221103704574636.jpg

精品设计案例

20180612134930523248.jpg 服务号二维码.jpg