立即预约 立即预约
免费定制整装家居

免费定制整装家居

一站置家 全程无忧 一省到底
hide.png

当前位置: 首页 > 装修案例效果图 > 会展一号|现代简约

会展一号|现代简约 77平 现代简约风格效果图

收藏
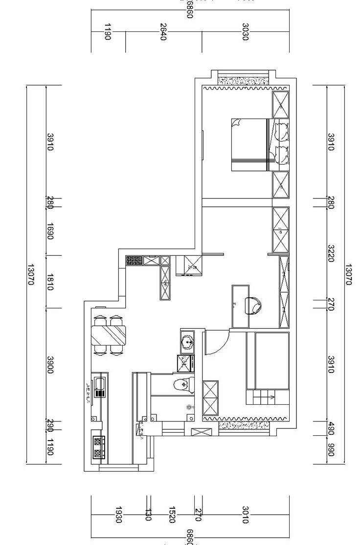
案例风格 现代简约 案例户型 二居 案例面积 77平米
楼盘名称 会展一号 设计师 肖婷婷 案例类型 改善性住宅

设计理念:业主注重大容量的储物空间,颜色以暖色主色调,简约,空间感足,带有局部颜色点缀,温馨感足

客厅
第1张
第2张
餐厅
第1张
第2张
卧室
第1张
卫生间
第1张
厨房
第1张
第2张
儿童房
第1张
户型图
第1张
会展一号-77平-现代风-首图.jpg 会展一号-77平-现代风-客厅.jpg

客厅和卧室空间贯通,采光增加阳光照射时间长,客厅舍去正常电视位置,整体提升储物和学习办公区域,配有沙发以用来接待客人,通铺暖色地板提升室内温馨度

会展一号-77平-现代风-餐厅.jpg 会展一号-77平-现代风-餐厅2.jpg

餐厅地面客厅整体呼应通铺地板,和开放的厨房更加融为一体,餐厅背景墙跳色为空间提亮,跳色的餐椅点缀色彩,增加丰富度,使用餐的时候心情愉悦

会展一号-77平-现代风-卧室.jpg

卧室改除以往的正常放置,整面储物柜增加空间储物功能,整体色调和客厅一致,正面玻璃拉门让阳光更为充裕,合理的摆放让卧室的空间看上不那么拥挤

会展一号-77平-现代风-卫生间.jpg

采用干湿分离,提高卫生间的空间利用率,方便早起业主家人口多用卫生间的麻烦。淋浴空间也会有很大的提高

会展一号-77平-现代风-厨房2.jpg 会展一号-77平-现代风-厨房.jpg

开放厨房满足了业主橱柜少不够用的局面,整体储存空间强大,橱柜和整体室内储物柜完美融合,形成统一风格,温馨,空间感极强,达到业主对厨房功能的满足

会展一号-77平-现代风-儿童房.jpg 施工图-Model.jpg

案例设计师

肖婷婷

设计师:肖婷婷

从业时间:10年

设计理念:持之以恒的学习是设计的来源,责任感是设计的原则,而灵感是设计的升华。

预约设计师

算算你家装修多少钱

报名即享丰厚赠品,享半价装修

免费报价
咨询热线:400-656-9909
20190221103704574636.jpg

精品设计案例

20180612134930523248.jpg 服务号二维码.jpg