立即预约 立即预约
免费定制整装家居

免费定制整装家居

一站置家 全程无忧 一省到底
hide.png

当前位置: 首页 > 装修案例效果图 > 大城印象|极简风格装修

大城印象|极简风格装修 120平 现代简约风格效果图

收藏
案例风格 现代简约 案例户型 三居 案例面积 120平米
楼盘名称 大城印象 设计师 林凤装饰全案设计师 案例类型 改善性住宅

设计理念:本案例主要是考虑房主的空间利用率及使用功能性。房主购买的学区房,考虑的是对生活的舒适度,对房子期待值很高,主要是对细节多考虑。

客厅
第1张
第2张
第3张
第4张
餐厅
第1张
卧室
第1张
第2张
第3张
第4张
卫生间
第1张
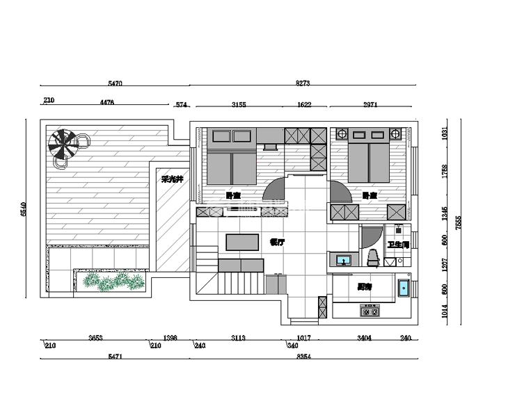
户型图
第1张
S1-鄂伟哲-大城印象-120平-极简风格-客厅.jpg S1-鄂伟哲-大城印象-120平-极简风格-客厅2.jpg S1-鄂伟哲-大城印象-120平-极简风格-客厅3.jpg S1-鄂伟哲-大城印象-120平-极简风格-首图.jpg

主要考虑颜色要对比鲜明,显得空间大一点。考虑地下室做的整体休闲厅,动静分离,都考虑楼下为动区。

S1-鄂伟哲-大城印象-120平-极简风格-餐厅.jpg

餐厅和挑空的楼梯口放在一起,楼上用餐空间更加透气,对墙面颜色用的是太空漫步,对于整体色彩要求就是简单,大气。和餐桌桌面的理石石材的色彩更好的融为一体。

S1-鄂伟哲-大城印象-120平-极简风格-次卧室.jpg S1-鄂伟哲-大城印象-120平-极简风格-次卧室2.jpg S1-鄂伟哲-大城印象-120平-极简风格-主卧室2.jpg S1-鄂伟哲-大城印象-120平-极简风格-主卧室.jpg

主卧室采用的超出常规的设计,床尾对面做了一排柜子。在床左右空间划分起来更加明朗。

S1-鄂伟哲-大城印象-120平-极简风格-卫生间.jpg

卫生间功能干湿分离,划分比较全面,镜柜收纳也非常棒。洗漱柜的颜色和木门的颜色也是走在一起。

S1-鄂伟哲-大城印象-120平-极简风格-户型图.jpg

案例设计师

林凤装饰全案设计师

设计师:林凤装饰全案设计师

从业时间:8年

设计理念:设计改变生活

预约设计师

算算你家装修多少钱

报名即享丰厚赠品,享半价装修

免费报价
咨询热线:400-656-9909
20190221103704574636.jpg

精品设计案例

20180612134930523248.jpg 服务号二维码.jpg