立即预约 立即预约
免费定制整装家居

免费定制整装家居

一站置家 全程无忧 一省到底
hide.png

当前位置: 首页 > 装修案例效果图 > 奥园|现代简约

奥园|现代简约 110平 现代简约风格效果图

收藏
案例风格 现代简约 案例户型 三居 案例面积 110平米
楼盘名称 奥园 设计师 仲崇彤 案例类型 改善性住宅

设计理念:本案设计主要以简洁明快为主,业主是45岁两口子,需求是收纳多一些,干净明亮一些,实用为主,不要考虑太多花哨的颜色。本案主要男房主女房主都是铁路工作人员,每天面对的颜色都是深色系,这次家里装修想摆脱深色,浅色,明亮为主。

客厅
第1张
第2张
第3张
餐厅
第1张
第2张
卧室
第1张
第2张
第3张
卫生间
第1张
厨房
第1张
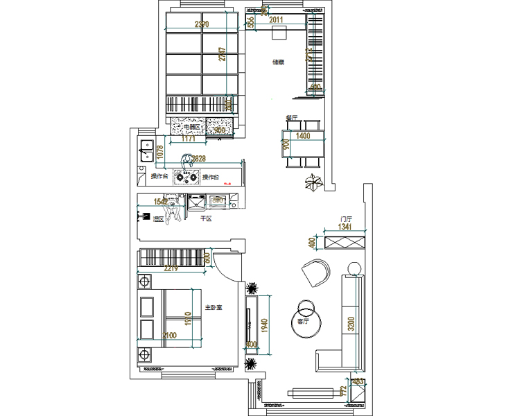
户型图
第1张
S1-仲崇彤-奥园-120平-现代风格-客厅.jpg S1-仲崇彤-奥园-120平-现代风格-客厅2.jpg S1-仲崇彤-奥园-120平-现代风格-首图.jpg

主要色调以明快的卡其色为沙发背景墙,背景墙用的是护墙板配搭隐形门设计,对背景墙的美观起到了很好的收尾工序。

S1-仲崇彤-奥园-120平-现代风格-餐厅.jpg S1-仲崇彤-奥园-120平-现代风格-餐厅2.jpg

餐厅整体看起来是和客厅颜色呼应的,橙色系灰色系点缀着小餐吊。看起来很舒服,简单。颜色更加明朗。

S1-仲崇彤-奥园-120平-现代风格-卧室2.jpg S1-仲崇彤-奥园-120平-现代风格-卧室.jpg S1-仲崇彤-奥园-120平-现代风格-卧室3.jpg

主卧室客户不喜欢顶天立地的柜子,喜欢透气感好一点的装饰,背景墙暖灰色,配搭这深色的床头,一副橙色的画,配搭了客厅的色调。看起来更加协调统一。

S1-仲崇彤-奥园-120平-现代风格-卫生间.jpg

卫生间功能干湿分离,功能划分比较全面,定制的柜子更加体现了整体感,洗衣机内嵌,上方还可以收纳洗漱用品,镜柜收纳也非常如意。

S1-仲崇彤-奥园-120平-现代风格-厨房.jpg

厨房上下一致的颜色,看起来干净明快,与整体色调搭配,配搭白色台面,灰色饰面,米色瓷砖,对比干净,体现风格。

S1-仲崇彤-奥园-120平-现代风格-户型图.jpg

案例设计师

仲崇彤

设计师:仲崇彤

从业时间:15年

设计理念:设计就是着重于点、线、面的灵活运用,把整个环境营造出家的温馨。

预约设计师

算算你家装修多少钱

报名即享丰厚赠品,享半价装修

免费报价
咨询热线:400-656-9909
20190221103704574636.jpg

精品设计案例

20180612134930523248.jpg 服务号二维码.jpg