立即预约 立即预约
免费定制整装家居

免费定制整装家居

一站置家 全程无忧 一省到底
hide.png

当前位置: 首页 > 装修案例效果图 > 凤凰城|日式风格

凤凰城|日式风格 500平 日式风格效果图

收藏
案例风格 日式 案例户型 别墅 案例面积 500平米
楼盘名称 凤凰城 设计师 杨达 案例类型 改善性住宅

设计理念:本案采用日式风格设计,具有浓厚的日本民族特色而且线条清晰,多使用原木色和地台进行装饰,并且休息区铺设榻榻米独具日式风格,更能表现出一种平和的意境。

客厅
第1张
第2张
餐厅
第1张
卧室
第1张
卫生间
第1张
厨房
第1张
阳台
第1张
书房
第1张
休闲区
第1张
第2张
衣帽间
第1张
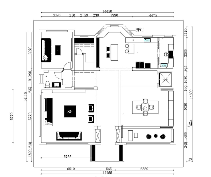
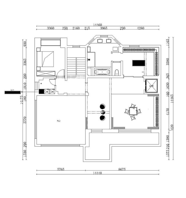
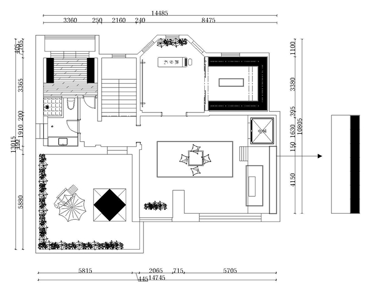
户型图
第1张
第2张
第3张
凤凰城-500平-日式风格-客厅.jpg 凤凰城-500平-日式风格-首页.jpg

采用直线造型边棚来打造空间的延伸感,简单的石膏板吊棚不添加多余的线条,主要采用原木色和灰色体现自然气息的浓郁。

凤凰城-500平-日式风格-餐厅.jpg

餐厅为餐桌与倒台相结合,设计中最主要体现了原生态的感觉,简单大方的效果符合日式的整体风格,与其他空间相呼应。

凤凰城-500平-日式风格-卧室.jpg

日式榻榻米我是最为基础的就是地台,施工工程简单方便,原木色框架和灰色地砖更显日式风格,利用灯线和筒灯增加氛围感。

凤凰城-500平-日式风格-卫生间.jpg

卫生间,定制洗手盆,智能马桶,白灰色墙砖不仅体现出日式风格的优雅,而且也会将整个卫生间的光线显得更加明亮。

凤凰城-500平-日式风格-厨房.jpg

厨房分为中西厨,打造吊柜设计让厨房更干净 整洁空间看起来会更加宽敞,更有空间感,看着就很赏心悦目。

凤凰城-500平-日式风格-阳台.jpg 凤凰城-500平-日式风格-书房.jpg 凤凰城-500平-日式风格-健身房.jpg 凤凰城-500平-日式风格-桑拿房.jpg 凤凰城-500平-日式风格-衣帽间.jpg 凤凰城-500平-日式风格-户型图二楼.png 凤凰城-500平-日式风格-户型图三楼.png 凤凰城-500平-日式风格-户型图一楼.png

案例设计师

杨达

设计师:杨达

从业时间:10年

设计理念:精雕细琢,返璞归真。

预约设计师

算算你家装修多少钱

报名即享丰厚赠品,享半价装修

免费报价
咨询热线:400-656-9909
20190221103704574636.jpg

精品设计案例

20180612134930523248.jpg 服务号二维码.jpg