立即预约 立即预约
免费定制整装家居

免费定制整装家居

一站置家 全程无忧 一省到底
hide.png

当前位置: 首页 > 装修案例效果图 > 法兰香颂

法兰香颂 88平 北欧风格效果图

收藏
案例风格 北欧 案例户型 二居 案例面积 88平米
楼盘名称 法兰香颂 设计师 吴勇 案例类型 婚房

设计理念:本案设计以北欧风格为主,整体空间较为干净舒适,储藏空间较多,整体色调偏深色感,但灯光偏亮,让整体空间变为和调。

客厅
第1张
第2张
第3张
餐厅
第1张
第2张
卧室
第1张
卫生间
第1张
第2张
厨房
第1张
第2张
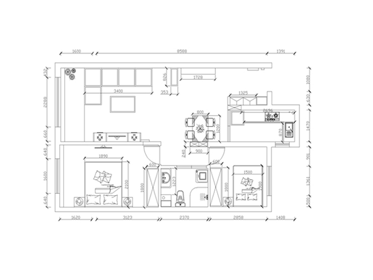
户型图
第1张
  • 案例详情

吴勇-法兰香颂-88平-北欧-客厅2.jpg 吴勇-法兰香颂-88平-北欧-客厅.jpg 吴勇-法兰香颂-88平-北欧-客厅1.jpg

客厅棚顶没有采用过多造型,走一圈石膏线,让整体空间有了层次感,沙发背景墙壁纸采用高级灰,与沙发颜色相呼应。

吴勇-法兰香颂-88平-北欧-餐厅1.jpg 吴勇-法兰香颂-88平-北欧-餐厅.jpg

餐厅位于客厅一侧,餐桌边采用了通体酒柜,扩大了餐厅区域,餐桌与酒柜颜色相呼应,让餐厅颜色搭配较为和谐。

卧室1.jpg

卧室采用 高级灰的床单,窗帘颜色与床单相呼应,由于整体空间颜色较浅,需要采用颜色较重的壁纸,让整体空间没有那么浮夸。

吴勇-法兰香颂-88平-北欧-卫生间1.jpg 吴勇-法兰香颂-88平-北欧-卫生间.jpg

卫生间瓷砖的颜色较深,让整体空间没那么跳跃,加上浅白色的洁具,让整体空间变的干净起来,考虑到防滑,采用了通体砖。

吴勇-法兰香颂-88平-北欧-厨房1.jpg 吴勇-法兰香颂-88平-北欧-厨房.jpg

厨房的墙砖与地砖采用浅白色瓷砖,加上深色橱柜,让整体空间变得和谐起来。由于餐厅空间较小放不下冰箱,所以采用砌墙方式把冰箱镶嵌厨房一侧。

吴勇-法兰香颂-88平-北欧-平面图.jpg

案例设计师

吴勇

设计师:吴勇

从业时间:11年

设计理念:用抽象的思维去设计形象的事物

预约设计师

算算你家装修多少钱

报名即享丰厚赠品,享半价装修

免费报价
咨询热线:400-656-9909
20190221103704574636.jpg

精品设计案例

20180612134930523248.jpg 服务号二维码.jpg