立即预约 立即预约
免费定制整装家居

免费定制整装家居

一站置家 全程无忧 一省到底
hide.png

当前位置: 首页 > 装修案例效果图 > 汇宝国际花园|现代风格

汇宝国际花园|现代风格 163平 现代简约风格效果图

收藏
案例风格 现代简约 案例户型 三居 案例面积 163平米
楼盘名称 汇宝国际花园 设计师 林凤设计师 案例类型 改善性住宅

设计理念:三口之家, 喜欢收纳功能充足,简单温馨的感觉。

客厅
第1张
第2张
第3张
餐厅
第1张
卧室
第1张
第2张
卫生间
第1张
第2张
书房
第1张
衣帽间
第1张
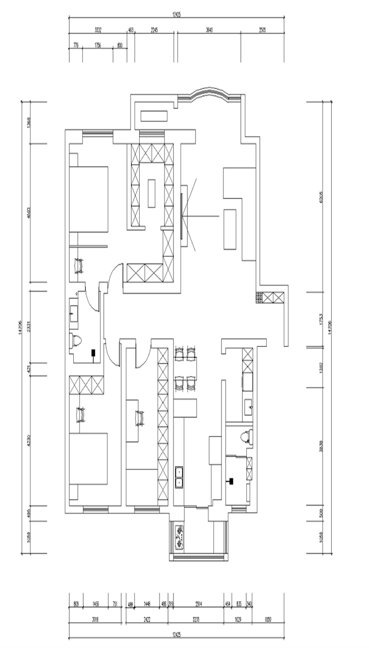
户型图
第1张
s7-刘云静-汇宝国际花园-163㎡现代效果表现-客餐厅2.jpg s7-刘云静-汇宝国际花园-163㎡现代效果表现-客厅.jpg s7-刘云静-汇宝国际花园-163㎡现代效果表现-首图.jpg

客厅电视背景墙用的是白色护墙板加木制格栅的设计, 客厅电视上方放的筒灯辅助光源起到了画龙点睛的作用, 筒灯产生的漫射光源规整的挥洒在背景墙上,整体效果温馨大气。

s7-刘云静-汇宝国际花园-163㎡现代效果表现-客餐厅1.jpg

客厅及餐厅的地面用的是具有现代风格的灰色地砖, 餐桌与西厨完美结合,实用性拉满,整体搭配完美符合客户对于温馨感的需求。简约但不简单。

s7-刘云静-汇宝国际花园-163㎡现代效果表现-主卧.jpg s7-刘云静-汇宝国际花园-163㎡现代效果表现-客卧.jpg

主卧室木制地板与木门相呼应,整体色调温馨,且木质地板带来的舒适脚感也完整贯穿着客户追求温馨的主题。再用一扇极具格调的半透明玻璃隔断作为主卫与床体之间的分割。使得主卧空间分明,明亮。

s7-刘云静-汇宝国际花园-163㎡现代效果表现-卫生间干区.jpg s7-刘云静-汇宝国际花园-163㎡现代效果表现-主卫.jpg

卫生间采用的是浅灰色地砖与深灰色墙砖相结合,洗手台部分依旧采用木色门板和白色台面,盥洗室与马桶空间采用玻璃拉门作为隔断,再搭配上玻璃浴屏,整体实现三分离。这样既展现出高级的现代感的同时又增添了几分温馨与浪漫。

s7-刘云静-汇宝国际花园-163㎡现代效果表现-榻榻米.jpg s7-刘云静-汇宝国际花园-163㎡现代效果表现-衣帽间.jpg 汇宝国际花园-163-现代风格-平面图.jpg

案例设计师

林凤设计师

设计师:林凤设计师

从业时间:10年

设计理念:以人为本

预约设计师

算算你家装修多少钱

报名即享丰厚赠品,享半价装修

免费报价
咨询热线:400-656-9909
20190221103704574636.jpg

精品设计案例

20180612134930523248.jpg 服务号二维码.jpg