立即预约 立即预约
免费定制整装家居

免费定制整装家居

一站置家 全程无忧 一省到底
hide.png

当前位置: 首页 > 装修案例效果图 > 保利和光尘樾|现代简约

保利和光尘樾|现代简约 136平 现代简约风格效果图

收藏
案例风格 现代简约 案例户型 四居 案例面积 136平米
楼盘名称 保利和光尘樾 设计师 林凤设计师 案例类型 改善性住宅

设计理念:本案设计为现代风格,主要以石材和护墙板两种墙面装饰材质互相呼应,配合白色墙面简约不失质感,橙色的软装配饰加以点缀,最终达到现代风格,少即是多的设计理念。

客厅
第1张
第2张
第3张
餐厅
第1张
第2张
第3张
卧室
第1张
卫生间
第1张
儿童房
第1张
门厅
第1张
第2张
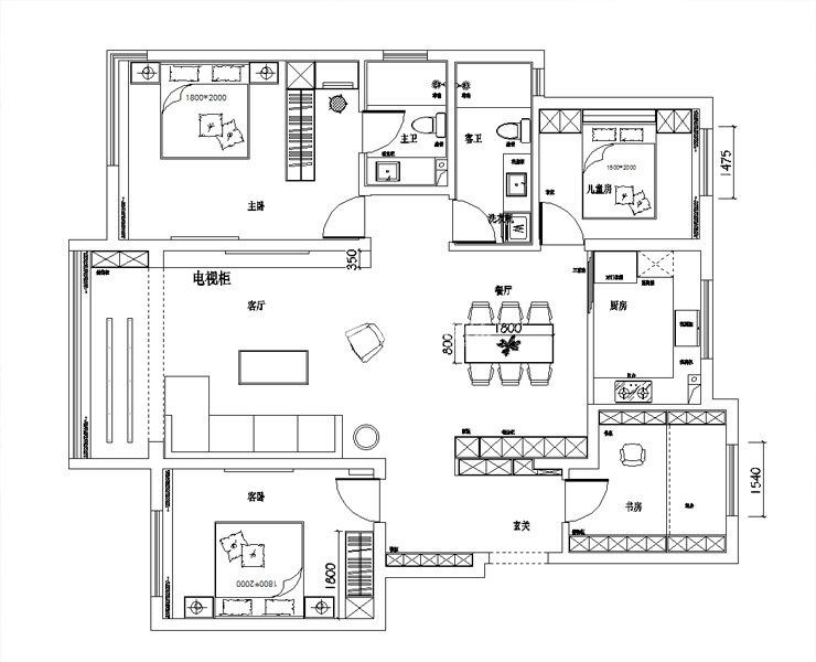
户型图
第1张
S1-徐兴达-保利和光尘樾-136平-现代风格-客厅.jpg S1-徐兴达-保利和光尘樾-136平-现代风格-客厅1.jpg S1-徐兴达-保利和光尘樾-136平-现代风格-首图.jpg

电视背景主要体现白色的岩板与深浅色的护墙板背景墙,简洁大气,富有质感。棚顶整体采用无主灯和嵌入式灯带设计,使整个空间氛围感十足。

S1-徐兴达-保利和光尘樾-136平-现代风格-餐厅.jpg S1-徐兴达-保利和光尘樾-136平-现代风格-餐厅3.jpg S1-徐兴达-保利和光尘樾-136平-现代风格-餐厅1.jpg

餐厅墙面主要采用护墙板装饰,木质质感十分高级,配合无主灯设计,氛围感十足。

S1-徐兴达-保利和光尘樾-136平-现代风格-主卧.jpg

主卧整体墙面以白色留白为主,地面灰色木质地板,衣帽间色系纹理与门相互呼应,使空间轻盈干净又富有空间深度。

S1-徐兴达-保利和光尘樾-136平-现代风格-主卫.jpg

卫生间墙面天然大理石横向纹理铺贴配合地面灰色大纹理地砖,手盆台面雪花白岩板肌理,线条硬朗分明,整个卫生间空间线条感十足。起到横向拉伸空间的最佳效果。

S1-徐兴达-保利和光尘樾-136平-现代风格-儿童房.jpg S1-徐兴达-保利和光尘樾-136平-现代风格-门厅.jpg S1-徐兴达-保利和光尘樾-136平-现代风格-门厅1.jpg S1-徐兴达-保利和光尘樾-136平-现代风格-平面图.jpg

案例设计师

林凤设计师

设计师:林凤设计师

从业时间:0年

设计理念:

预约设计师

算算你家装修多少钱

报名即享丰厚赠品,享半价装修

免费报价
咨询热线:400-656-9909
20190221103704574636.jpg

精品设计案例

20180612134930523248.jpg 服务号二维码.jpg