立即预约 立即预约
免费定制整装家居

免费定制整装家居

一站置家 全程无忧 一省到底
hide.png

当前位置: 首页 > 装修案例效果图 > 孔雀城|现代简约

孔雀城|现代简约 110平 现代简约风格效果图

收藏
案例风格 现代简约 案例户型 二居 案例面积 110平米
楼盘名称 孔雀城 设计师 林凤设计师 案例类型 改善性住宅

设计理念:本案设计为现代风格,整体墙面以白色为主,硬装没有复杂的线条,多以软装修饰为主,整体达到现代简约风格的最佳氛围感。

客厅
第1张
第2张
第3张
第4张
第5张
第6张
餐厅
第1张
第2张
卧室
第1张
卫生间
第1张
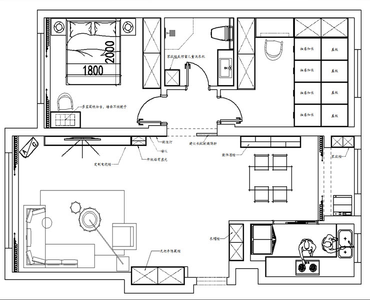
户型图
第1张
S1-徐兴达-孔雀城-110平-现代风格-客厅.jpg S1-徐兴达-孔雀城-110平-现代风格-客厅1.jpg S1-徐兴达-孔雀城-110平-现代风格-客厅3.jpg S1-徐兴达-孔雀城-110平-现代风格-客厅4.jpg S1-徐兴达-孔雀城-110平-现代风格-首图.jpg S1-徐兴达-孔雀城-110平-现代风格-客厅2.jpg

电视背景以白色墙面大面积留白为主,定制电视柜落地,配合一侧的定制设计,简约中追求细节上的质感,线条灯墙棚呼应,达到视觉拉伸的效果,凸显空间的极简质感。

S1-徐兴达-孔雀城-110平-现代风格-餐厅.jpg S1-徐兴达-孔雀城-110平-现代风格-餐厅1.jpg

餐厅打造了一个多功能的活动区域,北侧的休闲吧台为餐厅增添了一丝灵动感,突破传统的餐厅,富有设计感的餐吊灯加以点缀,使整个餐厅既富有家庭的烟火气息,又带着年轻人的活泼时尚的标签。

S1-徐兴达-孔雀城-110平-现代风格-主卧.jpg

主卧床头背景采用灰蓝色色系,地面暖调木色地板,冷暖相结合,简约温馨,舒适明快。

S1-徐兴达-孔雀城-110平-现代风格-卫生间.jpg

卫生间墙面瓷砖采用上下版深浅色铺贴 ,木色肌理的定制卫浴,空间层次感丰富有立体感,小资气质十足。

S1-徐兴达-孔雀城-110平-现代风格-平面图.jpg

案例设计师

林凤设计师

设计师:林凤设计师

从业时间:0年

设计理念:

预约设计师

算算你家装修多少钱

报名即享丰厚赠品,享半价装修

免费报价
咨询热线:400-656-9909
20190221103704574636.jpg

精品设计案例

20180612134930523248.jpg 服务号二维码.jpg