立即预约 立即预约
免费定制整装家居

免费定制整装家居

一站置家 全程无忧 一省到底
hide.png

当前位置: 首页 > 装修案例效果图 > 旭辉东越城|现代简约

旭辉东越城|现代简约 120平 现代简约风格效果图

收藏
案例风格 现代简约 案例户型 三居 案例面积 120平米
楼盘名称 旭辉东越城 设计师 孙安强 案例类型 改善性住宅

设计理念:现代简约风格利用开放的格局表现,简洁、舒适,没有多余的装饰,线条简单,室内空间大方,将空间、人和物品进行合理精致的结合。

客厅
第1张
第2张
第3张
餐厅
第1张
第2张
卧室
第1张
第2张
第3张
卫生间
第1张
第2张
厨房
第1张
门厅
第1张
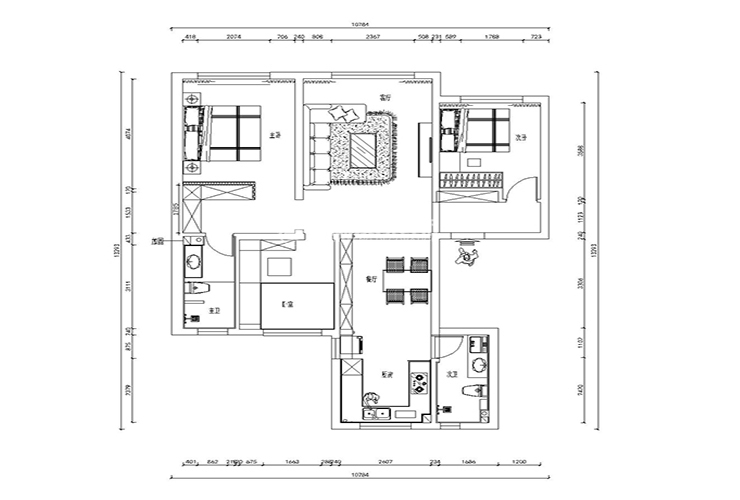
户型图
第1张
旭辉东越城-120平-现代简约风格-客厅1.jpg 旭辉东越城-120平-现代简约风格-首图.jpg 旭辉东越城-120平-现代简约风格-客厅2.jpg

客厅明暗对比恰到好处,沙发带有传统色彩的同时还有现代色彩的元素,整体美观而且大气,明暗对比的手法让客厅显得成熟庄重。

旭辉东越城-120平-现代简约风格-餐厅1.jpg 旭辉东越城-120平-现代简约风格-餐厅2.jpg

餐厅酒柜适合储藏收纳,吧台灯光点缀,增加空间层次感,餐桌使用黑色餐桌搭配绿色餐椅更显韵味。

旭辉东越城-120平-现代简约风格-卧室1.jpg 旭辉东越城-120平-现代简约风格-卧室2.jpg 旭辉东越城-120平-现代简约风格-卧室3.jpg

卧室整体表现温馨而个性,家具选择上使用高级灰与乳白色的床品床具,让空间更有调性,视觉开阔明朗,暖黄色的窗帘为室内增添柔和的感觉,令空间层次更加丰富。

旭辉东越城-120平-现代简约风格-卫生间2.jpg 旭辉东越城-120平-现代简约风格-卫生间1.jpg

卫生间简洁大气,清爽干净,将洗脸台安在墙角,巧妙的开发出一排格子柜,解决了洗漱用品的收纳问题,淋浴区用玻璃隔开,所有功能一目了然。

旭辉东越城-120平-现代简约风格-厨房.jpg

U型操作台,增加操作空间,厨房上下设橱柜,增加了收纳空间,淡雅洁白的颜色更助于增加房间的开放性和舒适性。

旭辉东越城-120平-现代简约风格-玄关.jpg 旭辉东越城-120平-现代简约风格-户型图.jpg

案例设计师

孙安强

设计师:孙安强

从业时间:10年

设计理念:生活是创意的来源,创意源于文化,创意源于自己

预约设计师

算算你家装修多少钱

报名即享丰厚赠品,享半价装修

免费报价
咨询热线:400-656-9909
20190221103704574636.jpg

精品设计案例

20180612134930523248.jpg 服务号二维码.jpg