立即预约 立即预约
免费定制整装家居

免费定制整装家居

一站置家 全程无忧 一省到底
hide.png

当前位置: 首页 > 装修案例效果图 > 小石城九颂大院|现代极简

小石城九颂大院|现代极简 130平 现代简约风格效果图

收藏
案例风格 现代简约 案例户型 三居 案例面积 130平米
楼盘名称 小石城九颂大院 设计师 邵丹 案例类型 改善性住宅

设计理念:现代极简,干净而又利落。与主人翁性格相得益彰,明朗且素雅,平静中带有一丝灵动。

客厅
第1张
第2张
第3张
餐厅
第1张
卧室
第1张
卫生间
第1张
厨房
第1张
儿童房
第1张
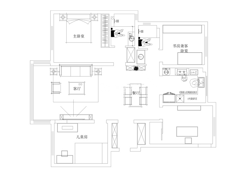
户型图
第1张
小石城-130平-极简风格-客厅 (2).jpg 小石城-130平-极简风格-客厅 (3).jpg 小石城-130平-极简风格-客厅.jpg

客厅选用五主灯设计,悬浮吊顶,和灰色布艺沙发背,凸显现代风格的简约与时尚,亚光地砖添加了一份质感,使整个感更加干净而明亮,散发着简约的艺术之美。

小石城-130平-极简风格-餐厅.jpg

餐厅与客厅相得益彰,空间感增加了几分时尚的韵味。

小石城-130平-极简风格-卧室.jpg

主卧室背景墙与客厅背景墙相呼应,寻用了女主人最爱的极简,清澈而明朗,给人以清新干净的居住环境。

小石城-130平-极简风格-卫生间.jpg

卫生间灰色的墙墙,没有太多复杂的造型,整体都是以简约为主,与现代风格相统一。

小石城-130平-极简风格-厨房.jpg

敞开式厨房浅深灰色的橱柜,纯色的现代风,简单的早餐台,极显女主人的生活品质。

小石城-130平-极简风格-儿童房.jpg 小石城-130平-极简风格-平面图.jpg

案例设计师

邵丹

设计师:邵丹

从业时间:8年

设计理念:细节决定品质。

预约设计师

算算你家装修多少钱

报名即享丰厚赠品,享半价装修

免费报价
咨询热线:400-656-9909
20190221103704574636.jpg

精品设计案例

20180612134930523248.jpg 服务号二维码.jpg