立即预约 立即预约
免费定制整装家居

免费定制整装家居

一站置家 全程无忧 一省到底
hide.png

当前位置: 首页 > 装修案例效果图 > 书香门第|现代简约

书香门第|现代简约 144平 现代简约风格效果图

收藏
案例风格 现代简约 案例户型 三居 案例面积 144平米
楼盘名称 书香门弟 设计师 林凤设计师 案例类型 改善性住宅

设计理念:现代且温馨的感觉。

客厅
第1张
第2张
餐厅
第1张
卧室
第1张
第2张
卫生间
第1张
第2张
第3张
儿童房
第1张
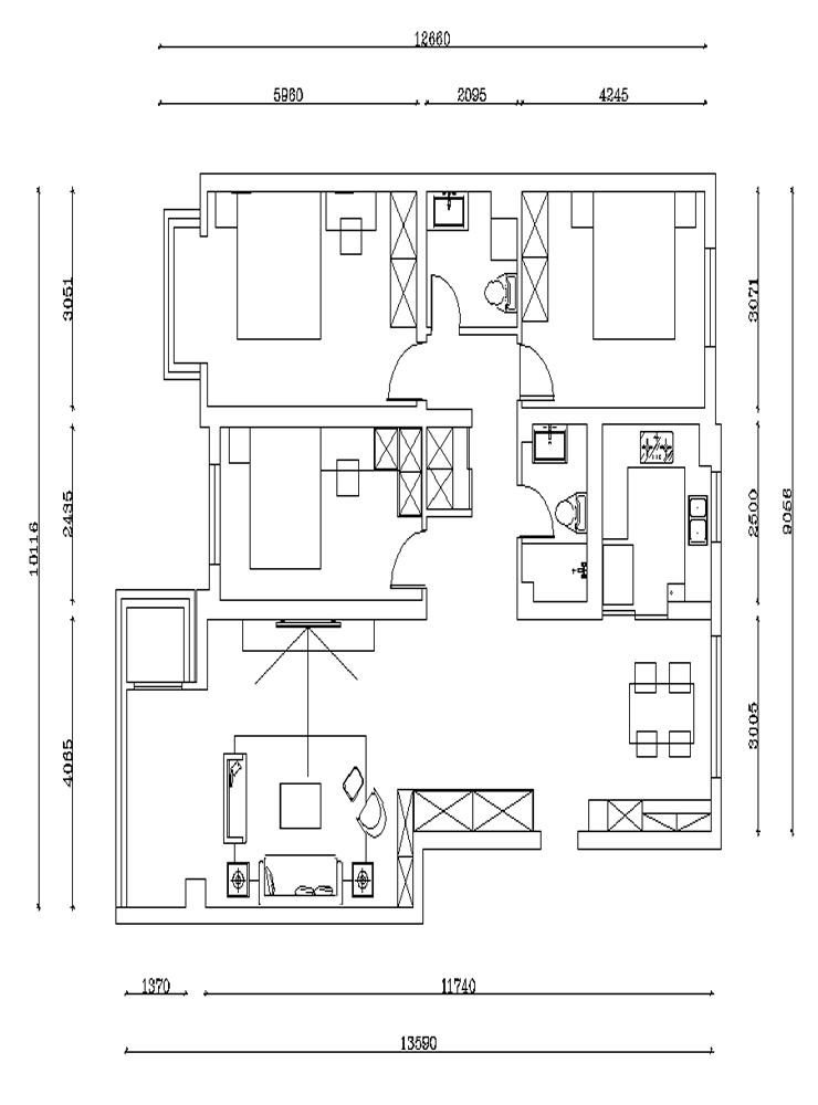
户型图
第1张
书香门第-145-现代风格-客厅1.jpg 书香门第-145-现代风格-客厅2.jpg

客厅电视背景墙用的是蓝灰色乳胶漆设计,搭配上灰色的窗帘与地毯,整体色彩相互呼应。整体定制部分全部采用的胡桃木色门板,使得整体风格统一。

书香门第-145-现代风格-餐厅1.jpg

餐厅部分作为独立空间,使得整体的空间感更强烈,房屋更大气。餐桌部分依旧采用的是胡桃木色,在彰显成熟与稳重的同时又十分的潮流。

书香门第-145-现代风格-次卧1.jpg 书香门第-145-现代风格-主卧1.jpg

主卧定制部分依旧沿用的胡桃木色门体,搭配上白色的门板更显简约大气。全屋统一的木质地板,在带来独特舒适脚感的同时也能带给客户更加温暖舒适的温馨体验。

书香门第-145-现代风格-卫生间1.jpg 书香门第-145-现代风格-卫生间2.jpg 书香门第-145-现代风格-卫生间3.jpg

卫生间采用的是浅灰色地砖与深灰色墙砖相结合,再搭配上灯带,整体效果更显简约温馨。淋浴部分采用玻璃浴屏,实现干湿分离,更方便打理且更具美观性。

书香门第-145-现代风格-女孩房.jpg 书香门第-145-现代风格-平面图.jpg

案例设计师

林凤设计师

设计师:林凤设计师

从业时间:10年

设计理念:以人为本

预约设计师

算算你家装修多少钱

报名即享丰厚赠品,享半价装修

免费报价
咨询热线:400-656-9909
20190221103704574636.jpg

精品设计案例

20180612134930523248.jpg 服务号二维码.jpg