立即预约 立即预约
免费定制整装家居

免费定制整装家居

一站置家 全程无忧 一省到底
hide.png

当前位置: 首页 > 装修案例效果图 > 新希望锦官天宸|现代风

新希望锦官天宸|现代风 120平 现代简约风格效果图

收藏
案例风格 现代简约 案例户型 三居 案例面积 120平米
楼盘名称 新希望锦官天宸 设计师 林凤设计师 案例类型 改善性住宅

设计理念:炫酷时尚的业主,就是希望酷酷的而不失高级感,简练硬朗的线条中带有家的温馨感。家对他们来说是港湾一般的存在,无论去到哪里,还是要回到最温暖的港湾。自在,随意,舒服的居住空间才是离不开的家。

客厅
第1张
餐厅
第1张
卧室
第1张
第2张
第3张
卫生间
第1张
第2张
厨房
第1张
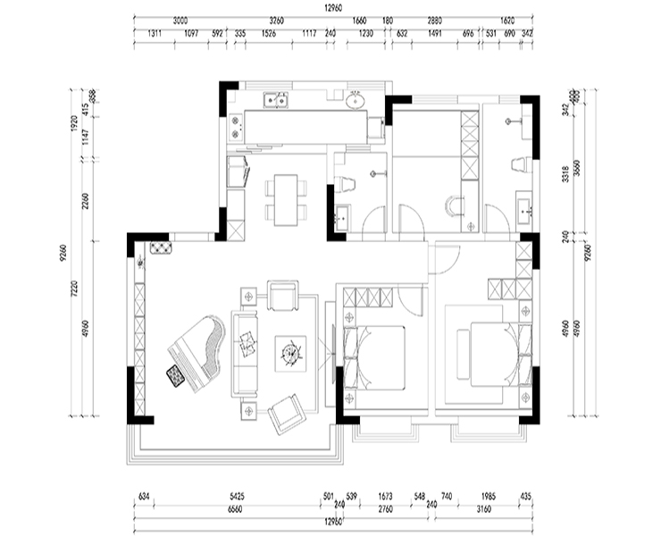
户型图
第1张
新希望锦官天宸-120平-现代风格-客厅.jpg

简约而利落的线条,对比性强烈的体块分割,将空间干净通透的格调展示得淋漓尽致,又在简洁的基调上丰盈着空间韵律。

新希望锦官天宸-120平-现代风格-餐厅.jpg

独立的就餐区域,使之与别的功能区区别开来。餐边柜的存在,可以让空间得以最大化的利用,让寸土寸金的空间物尽其用。布置上餐边柜,等于是在家里做多了一个收纳柜,这样家里的杂物、小物件都可以收纳到餐边柜里面,充足的收纳储物空间,是保持空间的简洁与实用的关键。

新希望锦官天宸-120平-现代风格-次卧.jpg 新希望锦官天宸-120平-现代风格-主卧.jpg 新希望锦官天宸-120平-现代风格-榻榻米卧室.jpg

卧室是休息空间,采用了温馨的奶咖系。奶咖色的衣柜搭配奶油色墙体,给人轻松舒适的感觉。

新希望锦官天宸-120平-现代风格-卫生间.jpg 新希望锦官天宸-120平-现代风格-主卧卫生间.jpg 新希望锦官天宸-120平-现代风格-厨房.jpg

封闭式厨房,温馨舒适。

新希望锦官天宸-120平-现代风格-户型图.jpg

案例设计师

林凤设计师

设计师:林凤设计师

从业时间:9年

设计理念:以人为本,一切围绕着生活来创造更佳的生活品质。

预约设计师

算算你家装修多少钱

报名即享丰厚赠品,享半价装修

免费报价
咨询热线:400-656-9909
20190221103704574636.jpg

精品设计案例

20180612134930523248.jpg 服务号二维码.jpg