立即预约 立即预约
免费定制整装家居

免费定制整装家居

一站置家 全程无忧 一省到底
hide.png

当前位置: 首页 > 装修案例效果图 > 龙湖滟澜山|现代简约

龙湖滟澜山|现代简约 260平 现代简约风格效果图

收藏
案例风格 现代简约 案例户型 四居 案例面积 260平米
楼盘名称 龙湖滟澜山 设计师 陆旭 案例类型 改善性住宅

设计理念:本案例设计风格为现代简约风格,经前期与客户沟通,整体空间光源充足,格局开阔,色彩搭配,空间布局合理,搭配上舒适自然的家居布置,棕色的细节点缀让空间更加高级大气,营造出一种轻松自然的氛围。

客厅
第1张
餐厅
第1张
卧室
第1张
第2张
第3张
第4张
卫生间
第1张
厨房
第1张
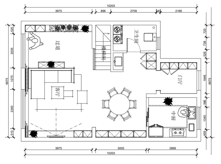
户型图
第1张
龙湖滟澜山-260㎡-现代风格-客厅.jpg

本案户型客厅主要是空间宽敞,电视与沙发背景墙采用理石护墙板等为装饰,颜色采用亮色,整体明亮不显得拥挤。简单的走一圈石膏线,配合上明装射灯点缀挂画,吊灯作为主光源,不显得啰嗦。

龙湖滟澜山-260㎡-现代风格-餐厅.jpg

本方案餐厅临近厨房,增加用餐便捷。考虑到用餐环境,采用餐吊灯作为主光源,搭配玻璃柜门酒柜,保证整体美观的同时,又好打理,使整体风格符合现代简约的风格特点。

龙湖滟澜山-260㎡-现代风格-卧室.jpg 龙湖滟澜山-260㎡-现代风格-卧室1.jpg 龙湖滟澜山-260㎡-现代风格-卧室2.jpg 龙湖滟澜山-260㎡-现代风格-卧室3.jpg

色彩的运用在装修手法上显得尤为重要,卧室背景墙采暖色,流行时尚温馨典雅。学习桌和全屋柜体用原木色使整体更加和谐。空间利用率高不显得空旷,书柜上方留虚光,使得灯光更有层次。

龙湖滟澜山-260㎡-现代风格-卫生间.jpg

卫生间洗手台的前放置大浴室镜,整体采用整砖铺贴,配合灯光更显宽敞,将空间划分明确,相互使用不受影响,整体光源充足。

龙湖滟澜山-260㎡-现代风格-厨房.jpg

L型橱柜加岛台形成U型空间,整体宽敞,布局合理,符合中国人做饭洗切炒的流程,橱柜采用白色,简约大气,长墙砖和防水石膏板吊顶也符合当下流行材料,耐用好看节约成本。

龙湖滟澜山-260㎡-现代风格-平面布局.jpg

案例设计师

陆旭

设计师:陆旭

从业时间:12年

设计理念:懂生活 爱生活 享受生活 才能设计好一个每天生活的地方

预约设计师

算算你家装修多少钱

报名即享丰厚赠品,享半价装修

免费报价
咨询热线:400-656-9909
20190221103704574636.jpg

精品设计案例

20180612134930523248.jpg 服务号二维码.jpg