立即预约 立即预约
免费定制整装家居

免费定制整装家居

一站置家 全程无忧 一省到底
hide.png

当前位置: 首页 > 装修案例效果图 > 舜山府别墅|现代简约

舜山府别墅|现代简约 208平 现代简约风格效果图

收藏
案例风格 现代简约 案例户型 四居 案例面积 208平米
楼盘名称 舜山府别墅 设计师 贺博文 案例类型 儿童房

设计理念:因生活而设计,因设计而完美。

客厅
第1张
第2张
第3张
第4张
卧室
第1张
第2张
第3张
卫生间
第1张
第2张
厨房
第1张
书房
第1张
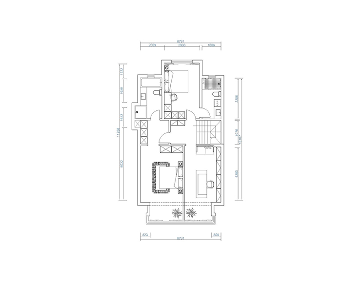
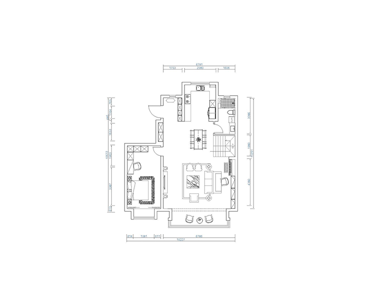
户型图
第1张
第2张
贺博文设计-舜山府别墅----客厅 7-20220907-092255.jpg 贺博文设计-舜山府别墅----客厅 6-20220907-092255.jpg 贺博文设计-舜山府别墅----客厅 8-20220907-092255.jpg 贺博文设计-舜山府别墅----客厅 9-20220907-092255.jpg

客厅说明: 选用现代简约的暖灰色瓷砖,结合趣味性的沙发使得整体氛围简约且不缺乏设计感,嵌入式柜体增加了收纳空间又使整体布局显得灵动而不呆板,简洁大气!

贺博文设计-舜山府别墅----儿童房 3-20220907-092255.jpg 贺博文设计-舜山府别墅----主卧 5-20220907-092256.jpg 贺博文设计-舜山府别墅----一楼卧室 10-20220907-092255.jpg

卧室说明:卧室单元有四块,分别是主卧,两个次卧和儿童房,现代吊灯加上灰色风格的格调,突出了空间层次感同时营造了现代简约的起居环境,两种纹路的原木色地板交错铺开增添空间动态感视觉上从床头灯到床头柜再到床品皆采用不同程度的灰色营造出简洁舒适的空间环境,均用现代简约元素,凸显了整体的高级感。

贺博文设计-舜山府别墅----二楼卫生间 2-20220907-092255.jpg 贺博文设计-舜山府别墅----一楼卫生间 0-20220907-092255.jpg

卫生间说明:以白色暗纹瓷600*1200的瓷砖装饰墙面,简约而又不会过于单调,收纳柜选择原木色增添空间的层次分离感让空间赋予了现代简约的气息,又不过于呆板,同时玻璃滑门的设计既能起到干湿分离的作用又不会破坏整体空间的宽敞感!

贺博文设计-舜山府别墅----厨房 1-20220907-092255.jpg 贺博文设计-舜山府别墅----书房 4-20220907-092255.jpg

书房说明:白色的书架与黑色书桌相互映衬,搭配原木色地板、保证舒适度的同时,完整的保留了现代简约的设计风格!

二楼.jpg 一楼.jpg

案例设计师

贺博文

设计师:贺博文

从业时间:20年

设计理念:有限空间、无限艺术

预约设计师

算算你家装修多少钱

报名即享丰厚赠品,享半价装修

免费报价
咨询热线:400-656-9909
20190221103704574636.jpg

精品设计案例

20180612134930523248.jpg 服务号二维码.jpg