立即预约 立即预约
免费定制整装家居

免费定制整装家居

一站置家 全程无忧 一省到底
hide.png

当前位置: 首页 > 装修案例效果图 > 金地樾檀山|现代风格

金地樾檀山|现代风格 200平 现代简约风格效果图

收藏
案例风格 现代简约 案例户型 四居 案例面积 200平米
楼盘名称 金地樾檀山 设计师 吴勇 案例类型 改善性住宅

设计理念:设计师整体设计理念: 因生活而设计,因设计而完美。

客厅
第1张
第2张
第3张
第4张
餐厅
第1张
卧室
第1张
第2张
第3张
卫生间
第1张
厨房
第1张
儿童房
第1张
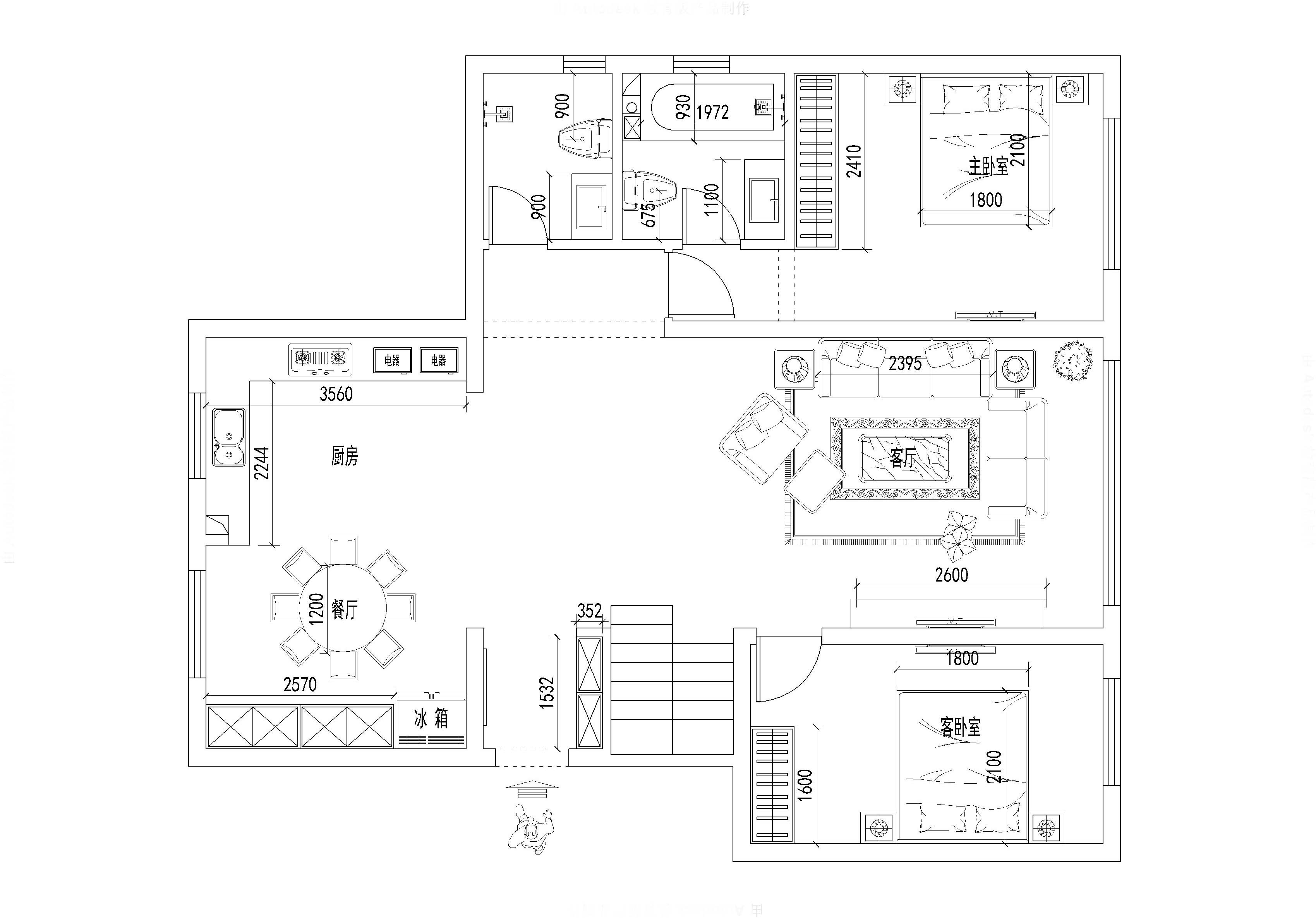
户型图
第1张
第2张
金地樾檀山-200平-现代风格-客厅1.jpg 金地樾檀山-200平-现代风格-客厅.jpg 金地樾檀山-200平-现代风格-客厅2.jpg 金地樾檀山-200平-现代风格-客卫生间.jpg

客厅说明:简洁的现代 风格,沙发选择的是1字型沙发,搭配调色小单椅,点缀整体客厅空间。电视背景墙选择了简约的白色理石纹理来进行颜色材质搭配木色护墙板

金地樾檀山-200平-现代风格-餐厅.jpg

餐厅说明:餐厅部分延续了厨房灰白色系 ,白色理石的台面使得整个厨房的光线提升一个高度 ,大理石材质的餐桌搭配金属质感的桌腿,使餐厅空间更有质感,更加简约时尚。

高鹏设计-金地樾檀山-现代风格-榻榻米.jpg 高鹏设计-金地樾檀山-现代风格-客卧.jpg 高鹏设计-金地樾檀山-现代风格-主卧.jpg 金地樾檀山-200平-现代风格-客卫生间.jpg

卫生间说明:卫生间采用灰白黑基调的颜色,为客户做到了干湿分离的日常生活需求,洗漱区域和洗衣机连体式,使卫生间有了更多的储物空间,方便业主放日常商品。

金地樾檀山-200平-现代风格-厨房.jpg

厨房说明:厨房以灰白色为主体基调,采用浅灰色地砖及白色墙砖进行搭配,灰色的橱柜搭配白色墙砖,白色是简约主义的永恒色, 使空间以一种透视的效果延伸,呈现空间感更明亮。简单的直线强调空间的开阔感, 最大的特点就是形式简洁确有不失美感

金地樾檀山-200平-现代风格-儿童房.jpg 高鹏设计-金地樾檀山-现代风格-平面图.jpg 高鹏设计-金地樾檀山-现代风格-平面图1.jpg

案例设计师

吴勇

设计师:吴勇

从业时间:11年

设计理念:用抽象的思维去设计形象的事物

预约设计师

算算你家装修多少钱

报名即享丰厚赠品,享半价装修

免费报价
咨询热线:400-656-9909
20190221103704574636.jpg

精品设计案例

20180612134930523248.jpg 服务号二维码.jpg