立即预约 立即预约
免费定制整装家居

免费定制整装家居

一站置家 全程无忧 一省到底
hide.png

当前位置: 首页 > 装修案例效果图 > 中铁 御水澜湾|现代简约

中铁 御水澜湾|现代简约 115平 现代简约风格效果图

收藏
案例风格 现代简约 案例户型 三居 案例面积 115平米
楼盘名称 中铁 御水澜湾 设计师 林凤装饰全案设计师 案例类型 改善性住宅

设计理念:设计师整体设计理念:将设计元素、色彩、照明等简化到最少的程度、达到简单、含蓄、简介的居家生活

客厅
第1张
第2张
第3张
餐厅
第1张
卧室
第1张
第2张
卫生间
第1张
厨房
第1张
书房
第1张
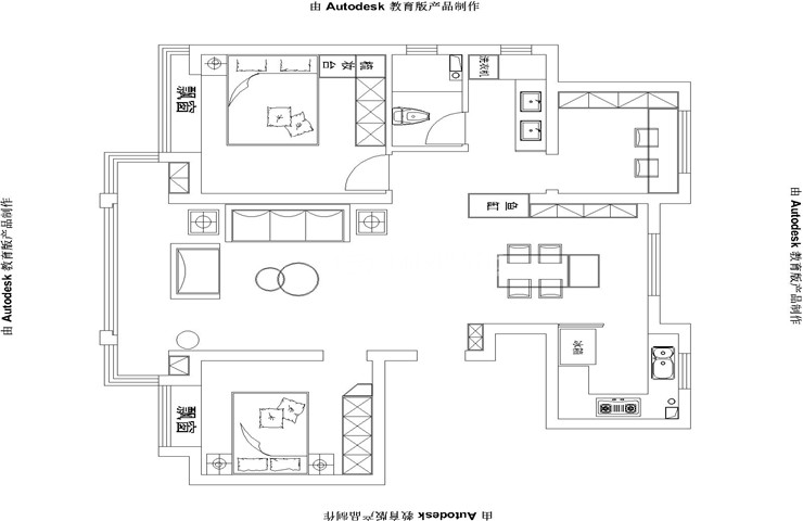
户型图
第1张
御水蓝湾-115-现代风格-客厅1.jpg 御水蓝湾-115-现代风格-客厅.jpg 御水蓝湾-115-现代风格-首图本.jpg

客厅说明: 客厅把原有的阳台空间全部拆除、这样客厅和阳台打通融为一体 显得敞亮一些、客厅不需要什么过多的装饰 、整体前面用米黄色乳胶漆 整体看起来温馨一些

御水蓝湾-115-现代风格-餐厅.jpg

餐厅及厨房说明:两个颜色的橱柜层次感更加的丰富、隐形把手的设计也正好复合整体风格的搭配 厨房看起来简单干净、达到了主人的需求 为什清理起来也比较方便。餐厅里搭配一个餐边柜、可以收纳一些日常的东西。

御水蓝湾-115-现代风格-卧室.jpg 御水蓝湾-115-现代风格-主卧.jpg

卧室说明:主卧室的背景墙是杏子灰颜色的乳胶漆 定制的衣柜带一个床头柜 这样会节省一部分空间

御水蓝湾-115-现代风格-卫生间.jpg

卫生间说明:两个卫生间的空间都不是很大 、所以就把卫生间改成一个干湿分离的 这样每个空间都足够用、家里人口不多 少了一套洁的开销、卫生间采用深色系瓷砖搭配白色洁具看起来简单明了

御水蓝湾-115-现代风格-厨房.jpg 御水蓝湾-115-现代风格-书房.jpg 刘哥哥家-Model.jpg

案例设计师

林凤装饰全案设计师

设计师:林凤装饰全案设计师

从业时间:10年

设计理念:热情奔放的红与蓝,睿智冷静黑与白,每一种色彩与艺术的共衡都呈现出独一无二的面貌,构建一种独属于自己的生活方式。

预约设计师

算算你家装修多少钱

报名即享丰厚赠品,享半价装修

免费报价
咨询热线:400-656-9909
20190221103704574636.jpg

精品设计案例

20180612134930523248.jpg 服务号二维码.jpg