立即预约 立即预约
免费定制整装家居

免费定制整装家居

一站置家 全程无忧 一省到底
hide.png

当前位置: 首页 > 装修案例效果图 > 龙湖春江悦茗|现代风格

龙湖春江悦茗|现代风格 108平 现代简约风格效果图

收藏
案例风格 现代简约 案例户型 二居 案例面积 108平米
楼盘名称 龙湖春江悦茗 设计师 林凤设计师 案例类型 儿童房

设计理念:女房主喜欢现代风格,现代简约追求时尚与潮流 形式美,造型简洁。

客厅
第1张
餐厅
第1张
卧室
第1张
第2张
卫生间
第1张
第2张
门厅
第1张
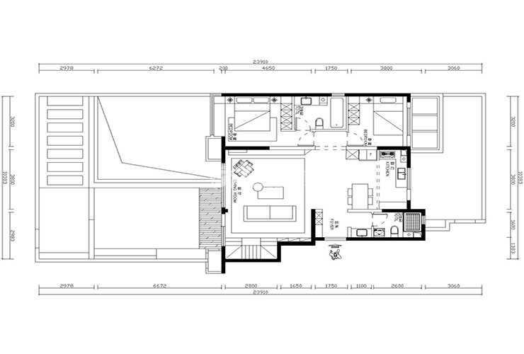
户型图
第1张
S7-罗佳-龙湖春江悦茗-现代风格-108㎡-客厅.jpg

客厅说明: 通过简洁的结合使得简单的物体搭配出新的效果,客厅沙发背景墙护墙板设计搭配悬空电视柜的组合。

S7-罗佳-龙湖春江悦茗-现代风格-108㎡-厨房餐厅.jpg

餐厅说明:餐厅极简式设计,餐桌的岛台材质为大理石材质,凳体选用黑灰色系相搭配,使整个空间更有质感。侧面选用木制进行搭配,整体更加相得益彰。

S7-罗佳-龙湖春江悦茗-现代风格-108㎡-客卧.jpg S7-罗佳-龙湖春江悦茗-现代风格-108㎡-主卧.jpg

卧室说明: 主卧室地板设计,简约的木制柜体搭配米白色系的床头柜,简单的吊灯完美的体现出现代风格,整个空间舒适温馨。

S7-罗佳-龙湖春江悦茗-现代风格-108㎡-客卫.jpg S7-罗佳-龙湖春江悦茗-现代风格-108㎡-主卫.jpg S7-罗佳-龙湖春江悦茗-现代风格-108㎡-门厅.jpg S7-罗佳-龙湖春江悦茗平面方案布局-现代风格-108㎡.jpg

案例设计师

林凤设计师

设计师:林凤设计师

从业时间:13年

设计理念:设计是用心雕琢的艺术品

预约设计师

算算你家装修多少钱

报名即享丰厚赠品,享半价装修

免费报价
咨询热线:400-656-9909
20190221103704574636.jpg

精品设计案例

20180612134930523248.jpg 服务号二维码.jpg