立即预约 立即预约
免费定制整装家居

免费定制整装家居

一站置家 全程无忧 一省到底
hide.png

当前位置: 首页 > 装修案例效果图 > 碧桂园名门

碧桂园名门 143平 欧式风格效果图

收藏
案例风格 欧式 案例户型 四居 案例面积 143平米
楼盘名称 碧桂园名门 设计师 林凤设计师 案例类型 改善性住宅

设计理念:本案主要以简单大方为设计要点,不会让空间显得特别的满,吧简欧的最大优势给体现出来!

客厅
第1张
第2张
第3张
第4张
餐厅
第1张
卧室
第1张
第2张
卫生间
第1张
厨房
第1张
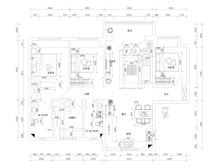
户型图
第1张
  • 案例详情

碧桂园名门-143平-简欧风格-客厅1.jpg 碧桂园名门-143平-简欧风格-客厅2.jpg 碧桂园名门-143平-简欧风格-客厅4.jpg 碧桂园名门-143平-简欧风格-客厅3.jpg

客厅的墙面和棚顶造型非常的简单,甚至连欧式风格常用的壁纸都没有过多的运用,目的就是要让空间显得简单大气!

碧桂园名门-143平-简欧风格-餐厅.jpg

餐厅是家居生活的心脏,不仅要美观,更重要的实用性,整体性。餐厅的灯光很重要既不能太强又不能太弱,顶部做了简单的吊顶。在灯光的映衬下,温馨暖和的暖色让人胃口大开,让人不自觉得的有种幸福感油上心头。

碧桂园名门-143平-简欧风格-主卧室2.jpg 碧桂园名门-143平-简欧风格-卧室1.jpg

卧室同样延续了客厅的设计风格,简约的背景墙,加上浅暖黄色的色调处理,明亮的空间,卧室变得充满阳光、安静、舒适感,可以让人有很好休息、睡眠。 小卧室并不用繁复的设计,最大程度的体现其使用价值。

碧桂园名门-143平-简欧风格-卫生间.jpg

卫生间墙地砖选择米黄色系列的砖给人带来的是一种温馨,在享受沐浴的同时放松整体心情,驱除疲惫感。

碧桂园名门-143平-简欧风格-厨房.jpg

厨房在家庭生活中起着非常重要的作用。随着生活水平的逐步提高,人们渴望干净实用、美观大方的整体效果。在本套设计中,我考虑更多的是美观跟实用性相结合,做了敞开式厨房

碧桂园名门-143平-简欧风格-平面图.jpg

案例设计师

林凤设计师

设计师:林凤设计师

从业时间:9年

设计理念:细节是基础,专注是根本

预约设计师

算算你家装修多少钱

报名即享丰厚赠品,享半价装修

免费报价
咨询热线:400-656-9909
20190221103704574636.jpg

精品设计案例

20180612134930523248.jpg 服务号二维码.jpg