立即预约 立即预约
免费定制整装家居

免费定制整装家居

一站置家 全程无忧 一省到底
hide.png

当前位置: 首页 > 装修案例效果图 > 金地檀郡

金地檀郡 88平 北欧风格效果图

收藏
案例风格 北欧 案例户型 二居 案例面积 88平米
楼盘名称 金地檀郡 设计师 林凤装饰设计师 案例类型 改善性住宅

设计理念:本设计案例合理的利用空间,结合实际情况及客户要求,运用色彩清新淡雅的沙发与原木色家具再搭配上装饰品将北欧风格彰显的淋漓尽致。

客厅
第1张
第2张
卧室
第1张
卫生间
第1张
厨房
第1张
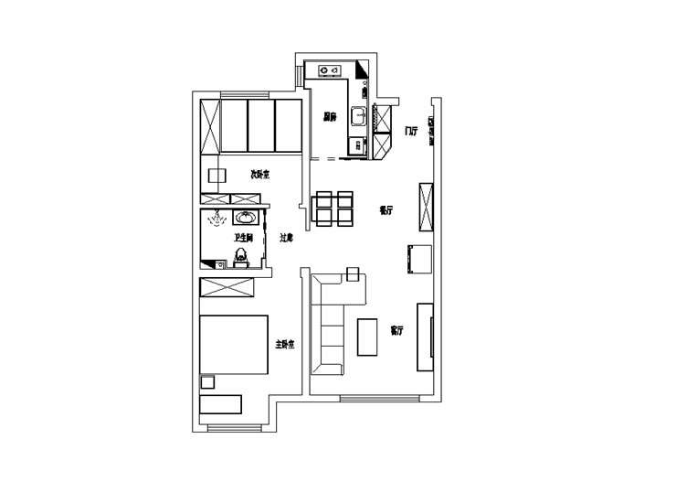
户型图
第1张
  • 案例详情

金地檀郡-88平-北欧风格-客厅背景墙2.jpg 金地檀郡-88平-北欧风格-客厅电视背景墙.jpg

客厅通过挂画的色彩将客厅与玄关连接到一起,相互呼应。让人感觉客厅的空间仿佛延伸出去一样。

金地檀郡-88平-北欧风格-主卧室.jpg

以蓝色搭配原木色,创造了干净的休息环境,暖黄色的灯光,让业主在休息时倍感温馨。

金地檀郡-88平-北欧风格-卫生间.jpg 金地檀郡-88平-北欧风格-厨房.jpg 金地檀郡-88平-北欧风格-平面布置图.jpg

案例设计师

林凤装饰设计师

设计师:林凤装饰设计师

从业时间:12年

设计理念:千人千面,设计以人为本才是王道。

预约设计师

算算你家装修多少钱

报名即享丰厚赠品,享半价装修

免费报价
咨询热线:400-656-9909
20190221103704574636.jpg

精品设计案例

20180612134930523248.jpg 服务号二维码.jpg