立即预约 立即预约
免费定制整装家居

免费定制整装家居

一站置家 全程无忧 一省到底
hide.png

当前位置: 首页 > 装修案例效果图 > 龙湖唐宁ONE|现代风格

龙湖唐宁ONE|现代风格 112平 现代简约风格效果图

收藏
案例风格 现代简约 案例户型 三居 案例面积 112平米
楼盘名称 龙湖唐宁ONE 设计师 白涵琦 案例类型 改善性住宅

设计理念:设计师整体设计理念: 针对上班族的业主,设计师用简约明朗的线条,将空间进行了合理的划分。简约大方,时尚而不缺美感,用最简单的造型表达出最美的效果,又不缺乏实用性。

客厅
第1张
餐厅
第1张
卧室
第1张
第2张
第3张
第4张
卫生间
第1张
第2张
第3张
厨房
第1张
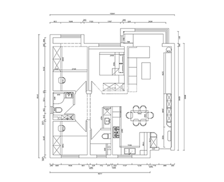
户型图
第1张
龙湖唐宁ONE-112平-现代风格-首图.jpg

客厅说明:开放式的大厅设计给人以通透之感,避免视觉给人带来的压迫感,可缓解业主工作一天的疲惫。没有夸张,不显浮华,经过干干净净的设计手法,将业主的工作空间巧妙地融入到生活空间中。

龙湖唐宁ONE-112平-现代风格--客餐厅.jpg 龙湖唐宁ONE-112平-现代风格--主卧.jpg 龙湖唐宁ONE-112平-现代风格--次卧.jpg 龙湖唐宁ONE-112平-现代风格-客卧.jpg 龙湖唐宁ONE-112平-现代风格--客卧.jpg

卧室说明:人们心理上的要求,期望卧室具有私密性、避光性,配套洗浴,静谧舒适,与住宅内其他房间分隔开来。卧室是整套房子中最私人的空间,能够完全根据自我的想法设计,纯粹的卧室是睡眠和更衣的房间,所以设计卧室首先考虑的是让人感到舒适和安静。

龙湖唐宁ONE-112平-现代风格--次卫.jpg 龙湖唐宁ONE-112平-现代风格--主卫.jpg 龙湖唐宁ONE-112平-现代风格--干区.jpg

卫生间说明:卫生间采用暖色调,配合浴屏分割干湿区,让卫生间更大气,整体的色调给人一种温馨的感觉。

龙湖唐宁ONE-112平-现代风格--厨房.jpg

厨房说明: 厨房功能是储存生活必备,为日常生活供给餐饮的保证。通常又把这三个区域所构成的三个点所构成的三角形称为厨房工作三角形,研究体现厨房的功能性。底柜设计偏重表现简约风格,虽然形式看似简单,但每个抽屉内部是不尽相同的使用各种内置式抽屉和金属拉篮,给主人供给了方便的操作空间。

龙湖唐宁ONE-112平-现代风格--平面图.jpg

案例设计师

白涵琦

设计师:白涵琦

从业时间:10年

设计理念:设计实现客户家居梦想

预约设计师

算算你家装修多少钱

报名即享丰厚赠品,享半价装修

免费报价
咨询热线:400-656-9909
20190221103704574636.jpg

精品设计案例

20180612134930523248.jpg 服务号二维码.jpg