立即预约 立即预约
免费定制整装家居

免费定制整装家居

一站置家 全程无忧 一省到底
hide.png

当前位置: 首页 > 装修案例效果图 > 东亚翰林世家|现代风格

东亚翰林世家|现代风格 96平 现代简约风格效果图

收藏
案例风格 现代简约 案例户型 三居 案例面积 96平米
楼盘名称 东亚翰林世家 设计师 白涵琦 案例类型 改善性住宅

设计理念:设计师整体设计理念:本案以极简的设计手法,采用墙板、大板砖以及灯光的相互结合,打造一个时尚舒适、富有现代感的居住空间。

客厅
第1张
第2张
餐厅
第1张
卧室
第1张
第2张
卫生间
第1张
第2张
厨房
第1张
第2张
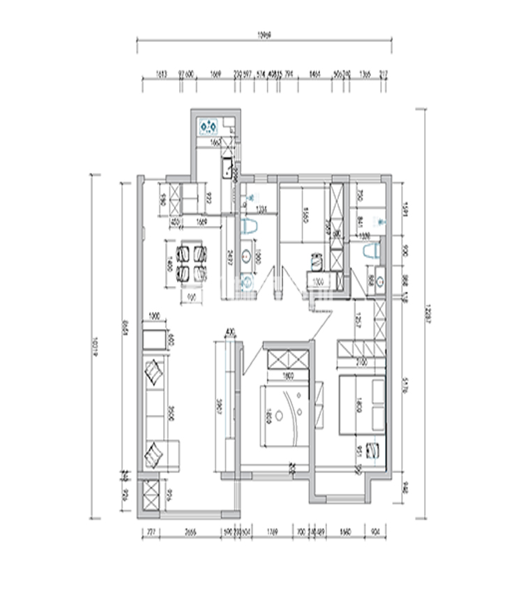
户型图
第1张
翰林世家-96平-现代风格-客厅-首图.jpg 翰林世家-96平-现代风格-客厅2.jpg

客厅说明: 客厅不仅作为会客起居之用,更是主人生活方式跟品味的展示。以咖色调为主,用色简洁大气而温馨,搭配硬朗的线条灯使整个空间更有质感。客厅与餐厅通透连贯,视觉上延伸空间

翰林世家-96平-现代风格-客厅.jpg 翰林世家-96平-现代风格-次卧.jpg 翰林世家-96平-现代风格-主卧.jpg

主卧说明:主卧内划分三个功能区,卧室、衣帽、卫生间,空间相对独立,即使与老人的生活习惯不同,也不会相互打扰。

翰林世家-96平-现代风格-次卫.jpg 翰林世家-96平-现代风格-主卫.jpg

卫生间说明:卫生间采用暖色调,配合浴屏分割干湿区,让卫生间更大气,整体的色调给人一种温馨的感觉。

翰林世家-96平-现代风格-厨房.jpg 翰林世家-96平-现代风格-厨房1.jpg

厨房说明: 厨房采用封闭式L型厨房,采用灰色和白色拉门与柜体形成颜色对比,使整个空间显得干净整洁。空间整洁大方。视觉上产生延伸效果。

翰林世家-96平-现代风格-平面布局图.jpg

案例设计师

白涵琦

设计师:白涵琦

从业时间:10年

设计理念:设计实现客户家居梦想

预约设计师

算算你家装修多少钱

报名即享丰厚赠品,享半价装修

免费报价
咨询热线:400-656-9909
20190221103704574636.jpg

精品设计案例

20180612134930523248.jpg 服务号二维码.jpg