立即预约 立即预约
免费定制整装家居

免费定制整装家居

一站置家 全程无忧 一省到底
hide.png

当前位置: 首页 > 装修案例效果图 > 华润公园九里|现代风格

华润公园九里|现代风格 134平 现代简约风格效果图

收藏
案例风格 现代简约 案例户型 三居 案例面积 134平米
楼盘名称 华润公园九里 设计师 孟凡玉 案例类型 改善性住宅

设计理念:设计师整体设计理念:“宁静的夏日午后,沏上一壶好茶, 与家人聚在一起谈笑风生。”生活就是要这样简单平淡,往往懂得生活的人才能从平淡的生活中品出味道来。简约而又不简单,这正是现代简约风格特点的精髓所在。

客厅
第1张
第2张
第3张
餐厅
第1张
卧室
第1张
第2张
卫生间
第1张
厨房
第1张
书房
第1张
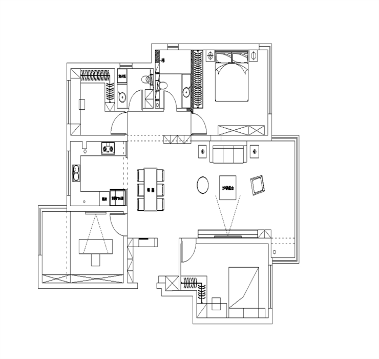
户型图
第1张
原创设计丨华润公园九里丨孟凡玉-客厅.jpg 原创设计丨华润公园九里丨孟凡玉-客厅1.jpg 原创设计丨华润公园九里丨孟凡玉-首图.jpg

客厅设计说明: 客厅采用了石膏线结合边棚的形式,使中央空调和棚面协调一致,暖色能给客户一种温馨的家的感觉,沙发搭配单椅,使客厅区域更饱满和谐。

原创设计丨华润公园九里丨孟凡玉-客餐厅.jpg

餐厅设计说明: 餐厅延续客厅的色调与形式,定制柜颜色与客厅相呼应,配上皮质的餐椅,使整个空间更加大气美观。

原创设计丨华润公园九里丨孟凡玉-次卧.jpg 原创设计丨华润公园九里丨孟凡玉-主卧.jpg

卧室设计说明:主卧室整体色调非常温馨,做了一个衣柜结合学习桌, 使空间充分利用,衣柜与书桌结合,增添了功能性。

原创设计丨华润公园九里丨孟凡玉-卫生间.jpg

卫生间设计说明:卫生间造型干脆利落,卫生间是人们经常使用的空间,根据客户的需求利用浅色系使空间更加大气明亮,材料有光泽感,空间通透。手盆,坐便,淋浴排布明确,空间利用恰当合理。

原创设计丨华润公园九里丨孟凡玉-厨房.jpg

厨房设计说明: 厨房吊柜采用浅色系,地柜采用深色,使整个空间上下呼应形成一个整体,各个功能齐全完善,可以充分的满足客户生活需求。

原创设计丨华润公园九里丨孟凡玉-书房.jpg 户型图.jpg

案例设计师

孟凡玉

设计师:孟凡玉

从业时间:10年

设计理念:好的设计不只是美,它会让人产生美的 感受,它与生活息息相关

预约设计师

算算你家装修多少钱

报名即享丰厚赠品,享半价装修

免费报价
咨询热线:400-656-9909
20190221103704574636.jpg

精品设计案例

20180612134930523248.jpg 服务号二维码.jpg