立即预约 立即预约
免费定制整装家居

免费定制整装家居

一站置家 全程无忧 一省到底
hide.png

当前位置: 首页 > 装修案例效果图 > 全运首府仁德里|现代简约

全运首府仁德里|现代简约 135平 现代简约风格效果图

收藏
案例风格 现代简约 案例户型 三居 案例面积 135平米
楼盘名称 全运首府仁德里 设计师 林凤装饰全案设计师 案例类型 改善性住宅

设计理念:设计师整体设计理念: 现代简约在处理空间方面强调室内空间宽敞、室内通透,最大限度引入自然光。该案例以浅色为基调,为业主创造出舒适、自然的居住氛围。

客厅
第1张
第2张
卧室
第1张
第2张
第3张
卫生间
第1张
厨房
第1张
过廊
第1张
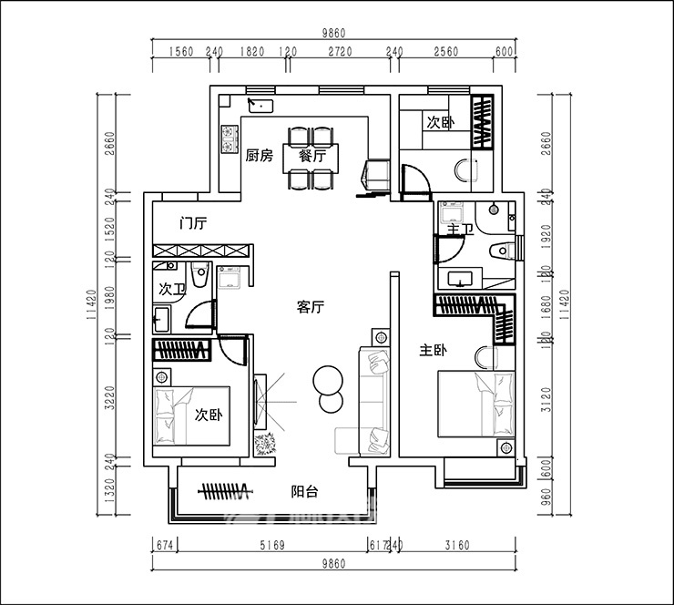
户型图
第1张
全运首府仁德里-135平-现代简约-客厅1.jpg 全运首府仁德里-135平-现代简约-客厅2.jpg

客厅说明:客厅以浅灰色作为整体风格的点缀色,让整体过渡的更加自然.不显突兀.软装的造型感觉提升了整体效果.

全运首府仁德里-135平-现代简约-北卧.jpg 全运首府仁德里-135平-现代简约-次卧.jpg 全运首府仁德里-135平-现代简约-主卧.jpg

主卧室说明: 主卧室与整体风格保持一直,背景墙做颜色调色,使得整体效果更加完美.效果统一。

全运首府仁德里-135平-现代简约-主卫.jpg

卫生间说明:卫生间采用深咖色和浅咖色的砖,地砖上墙的铺贴方式,让卫生间更贴合现代风格,明暗对比视觉效果突出,浅色色柜子搭配理石的台面,整体的色调给人一种高端大气的感觉。

全运首府仁德里-135平-现代简约-厨房.jpg

厨房说明: 厨房采用纯色灰色和白色台面的配色进行搭配.更好打理.也体现简约风格

全运首府仁德里-135平-现代简约-玄关.jpg 全运首府仁德里-135平-现代简约-平面图.jpg

案例设计师

林凤装饰全案设计师

设计师:林凤装饰全案设计师

从业时间:10年

设计理念:热情奔放的红与蓝,睿智冷静黑与白,每一种色彩与艺术的共衡都呈现出独一无二的面貌,构建一种独属于自己的生活方式。

预约设计师

算算你家装修多少钱

报名即享丰厚赠品,享半价装修

免费报价
咨询热线:400-656-9909
20190221103704574636.jpg

精品设计案例

20180612134930523248.jpg 服务号二维码.jpg