立即预约 立即预约
免费定制整装家居

免费定制整装家居

一站置家 全程无忧 一省到底
hide.png

当前位置: 首页 > 装修案例效果图 > 金地九阙台|中式风格

金地九阙台|中式风格 172平 现代简约风格效果图

收藏
案例风格 现代简约 案例户型 三居 案例面积 172平米
楼盘名称 金地九阙台 设计师 张景新 案例类型 改善性住宅

设计理念:设计理念:本案建筑面积172平米,根据业主需求设计了中式风格,沉稳大气,不俗套,用简单明快的线条和装饰,营造不简单的效果。

客厅
第1张
第2张
第3张
餐厅
第1张
卧室
第1张
第2张
第3张
卫生间
第1张
厨房
第1张
书房
第1张
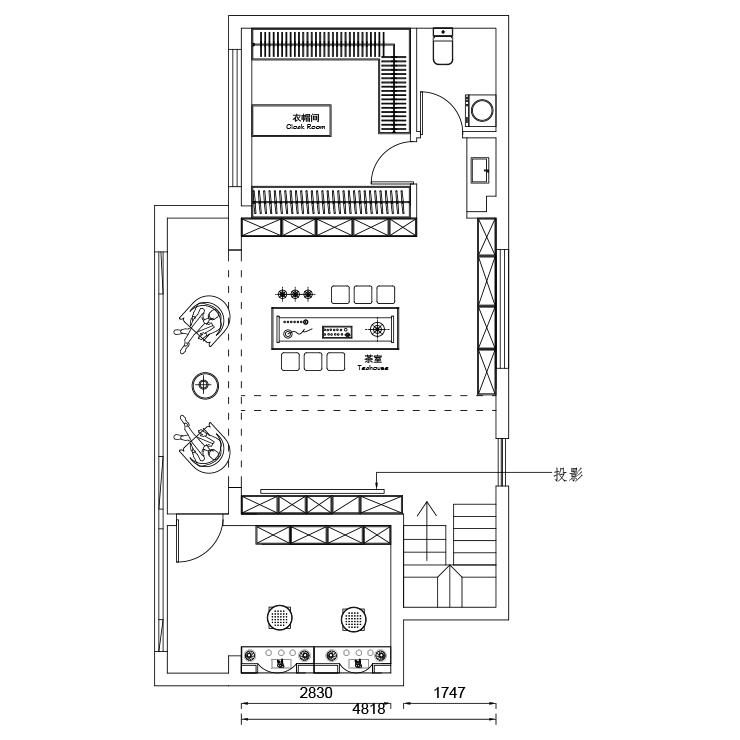
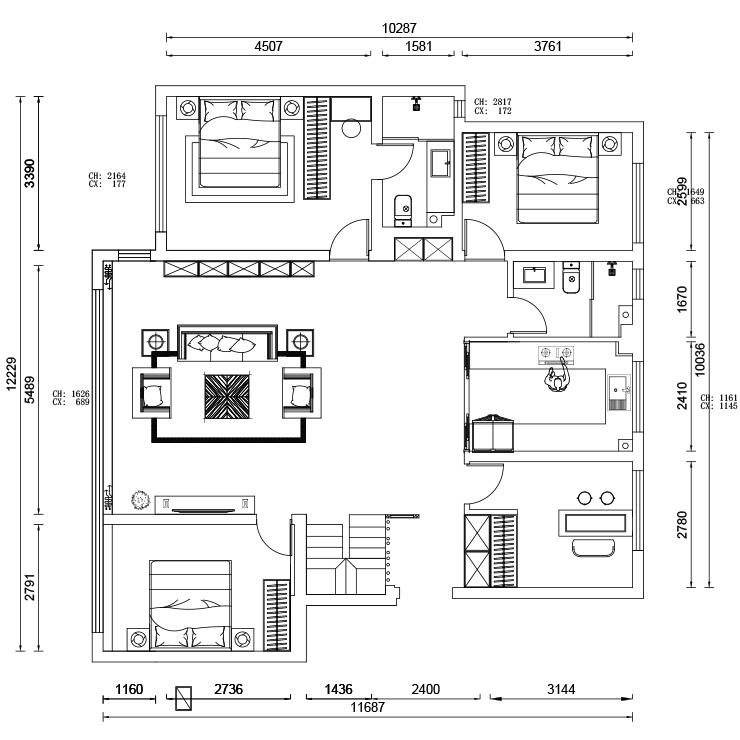
户型图
第1张
第2张
金地九阙台-172㎡-中式风格-首图.jpg 金地九阙台-172㎡-中式风格-客厅.jpg 金地九阙台-172㎡-中式风格-客厅1.jpg

客厅说明:采用主灯设计,深棕的色调大气优雅。

金地九阙台-172㎡-中式风格-餐厅.jpg 金地九阙台-172㎡-中式风格-北卧.jpg 金地九阙台-172㎡-中式风格-主卧.jpg 金地九阙台-172㎡-中式风格-主卫.jpg

卧室说明:在卧室中放置了梳妆台满足女主人化妆的需求 次卧说明:次卧订制衣柜,加大了收纳空间。

金地九阙台-172㎡-中式风格-主卫.jpg

卫生间说明:主卫的淋浴房保障整个空间的干燥

金地九阙台-172㎡-中式风格-厨房.jpg

厨房说明:U性台的设计满足了客户对大厨房的需求,嵌入式冰箱和大面积的橱柜增加了收纳空间,实现空间合理化。

金地九阙台-172㎡-中式风格-书房.jpg 金地九阙台-172㎡-中式风格-二楼布局图.jpg 金地九阙台-172㎡-中式风格-一楼布局图.jpg

案例设计师

张景新

设计师:张景新

从业时间:6年

设计理念:合理的划分空间,让设计融入生活,营造自然,品味,格调

预约设计师

算算你家装修多少钱

报名即享丰厚赠品,享半价装修

免费报价
咨询热线:400-656-9909
20190221103704574636.jpg

精品设计案例

20180612134930523248.jpg 服务号二维码.jpg