立即预约 立即预约
免费定制整装家居

免费定制整装家居

一站置家 全程无忧 一省到底
hide.png

当前位置: 首页 > 装修案例效果图 > 中海汇德里|现代简约

中海汇德里|现代简约 125平 现代简约风格效果图

收藏
案例风格 现代简约 案例户型 三居 案例面积 125平米
楼盘名称 中海汇德里 设计师 贺博文 案例类型 改善性住宅

设计理念:设计理念:现代风设计理念强调功能性、简洁性、创新性和环保性,注重人性化的设计,追求舒适和美感的完美结合。现代风设计注重功能性,以满足人们生活和工作的实际需求为出发点。在空间布局上,通过合理的区域划分和流线设计,使使用者能够更加便捷地进行活动。该案例以暖色为基调,为业主创造出舒适、自然、和谐的居住氛围。

客厅
第1张
第2张
第3张
餐厅
第1张
卧室
第1张
第2张
第3张
卫生间
第1张
厨房
第1张
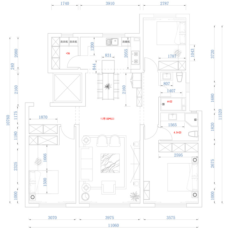
户型图
第1张
贺博文设计-中海汇德里125-客厅-5-20240413-110106.jpg 贺博文设计-中海汇德里125-客厅-7-20240413-110106.jpg 贺博文设计-中海汇德里125-客厅-6-20240413-110106.jpg

客厅说明:开放式的大厅设计给人以通透之感,柔和清晰的线条将使每个人都放松,客厅暖色系地砖将总体的餐厅客厅厨房相接,起到连贯效果,落地窗可以最大程度的引入自然光线。

贺博文设计-中海汇德里125-客厅-4-20240413-110105.jpg 贺博文设计-中海汇德里125-北卧-2-20240413-110105.jpg 贺博文设计-中海汇德里125-主卧-8-20240413-110105.jpg 贺博文设计-中海汇德里125-儿童房-9-20240413-110106.jpg

主卧室说明:卧室暖色壁纸墙面,温馨好打理。通过运用简洁的线条,打造一个干净、整洁和时尚的卧室空间。床头棚面需光设计,让卧室增加温馨效果。

贺博文设计-中海汇德里125-主卫-1-20240413-110106.jpg

卫生间说明:卫生间墙面铺设大理石纹路瓷砖,使空间呈现高档大气的效果,洗漱柜为白色理石台面温馨且好打理。

贺博文设计-中海汇德里125-厨房-3-20240413-110106.jpg

厨房说明:餐厅与厨房相连接,呈现出餐厅空间明亮宽大的效果,底柜设计表现简约风格。现代风餐厅设计旨在提供舒适、现代、实用的空间,同时注重环保和节能,利用色彩和材料营造出独特的氛围,满足现代社会人们的生活需求,

贺博文设计-中海汇德里-平面图.jpg

案例设计师

贺博文

设计师:贺博文

从业时间:20年

设计理念:有限空间、无限艺术

预约设计师

算算你家装修多少钱

报名即享丰厚赠品,享半价装修

免费报价
咨询热线:400-656-9909
20190221103704574636.jpg

精品设计案例

20180612134930523248.jpg 服务号二维码.jpg