立即预约 立即预约
免费定制整装家居

免费定制整装家居

一站置家 全程无忧 一省到底
hide.png

当前位置: 首页 > 装修案例效果图 > 奥海南樾府|现代风格

奥海南樾府|现代风格 138平 现代简约风格效果图

收藏
案例风格 现代简约 案例户型 四居 案例面积 138平米
楼盘名称 奥海南樾府 设计师 张景新 案例类型 改善性住宅

设计理念:设计理念:客户是单身小伙,,本房型为四室一厨一卫的户型,根据客户的实际居住情况,简洁且充满艺术感的居住空间。设计过程中,深入了解了居住者的生活习惯、审美需求以及空间功能要求,确保设计方案既满足实用性,又体现个性化。客厅说明:客户日常活动空间主要在客厅,保留原始大阳台,晾衣区域设置在里侧,整体增加客厅的舒适性,整洁性和空间性

客厅
第1张
第2张
第3张
餐厅
第1张
卧室
第1张
第2张
卫生间
第1张
第2张
厨房
第1张
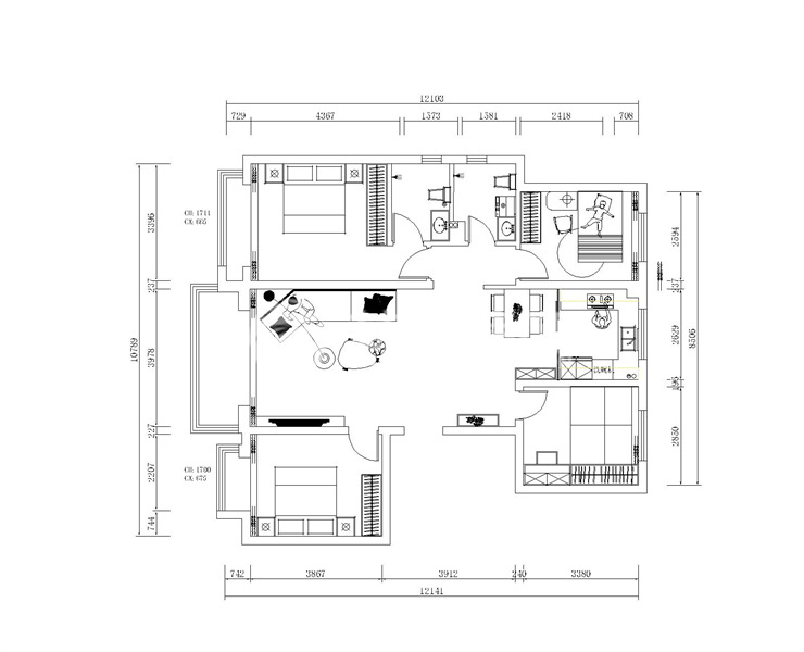
户型图
第1张
奥海南樾府-138平-现代风格-客厅.jpg 奥海南樾府-138平-现代风格-客厅 (2).jpg 奥海南樾府-138平-现代风格-沙发区.jpg 奥海南樾府-138平-现代风格-餐厅.jpg 奥海南樾府-138平-现代风格-榻榻米.jpg 奥海南樾府-138平-现代风格-主卧.jpg

主室说明:确定床的位置,确保床头有足够的空间方便上下床,并且床头柜或其他储物空间位于床侧方便使用。

奥海南樾府-138平-现代风格-客卫 (2).jpg 奥海南樾府-138平-现代风格-主卫.jpg

卫生间说明:浴室柜洗衣机一体设计整洁,台面空间大

奥海南樾府-138平-现代风格-厨房.jpg

厨房说明:现代厨柜设计注重简约风格,将厨房变成一个时尚的艺术空间,让你每天的烹饪过程也成为一种享受。

户型图.jpg

案例设计师

张景新

设计师:张景新

从业时间:6年

设计理念:合理的划分空间,让设计融入生活,营造自然,品味,格调

预约设计师

算算你家装修多少钱

报名即享丰厚赠品,享半价装修

免费报价
咨询热线:400-656-9909
20190221103704574636.jpg

精品设计案例

20180612134930523248.jpg 服务号二维码.jpg