立即预约 立即预约
免费定制整装家居

免费定制整装家居

一站置家 全程无忧 一省到底
hide.png

当前位置: 首页 > 装修案例效果图 > 龙湖中铁建云璟|现代简约风格

龙湖中铁建云璟|现代简约风格 130平 现代简约风格效果图

收藏
案例风格 现代简约 案例户型 三居 案例面积 130平米
楼盘名称 龙湖中铁建云璟 设计师 贺博文 案例类型 改善性住宅

设计理念:设计理念:现代简约风格是一种简单、干净、明亮、宁静的室内设计风格,追求的是少即是多的概念,在处理空间方面强调室内空间宽敞、室内通透,最大限度引入自然光。该案例以暖色为基调,为业主创造出舒适、自然、和谐的居住氛围。

客厅
第1张
第2张
第3张
卧室
第1张
第2张
第3张
卫生间
第1张
第2张
厨房
第1张
门厅
第1张
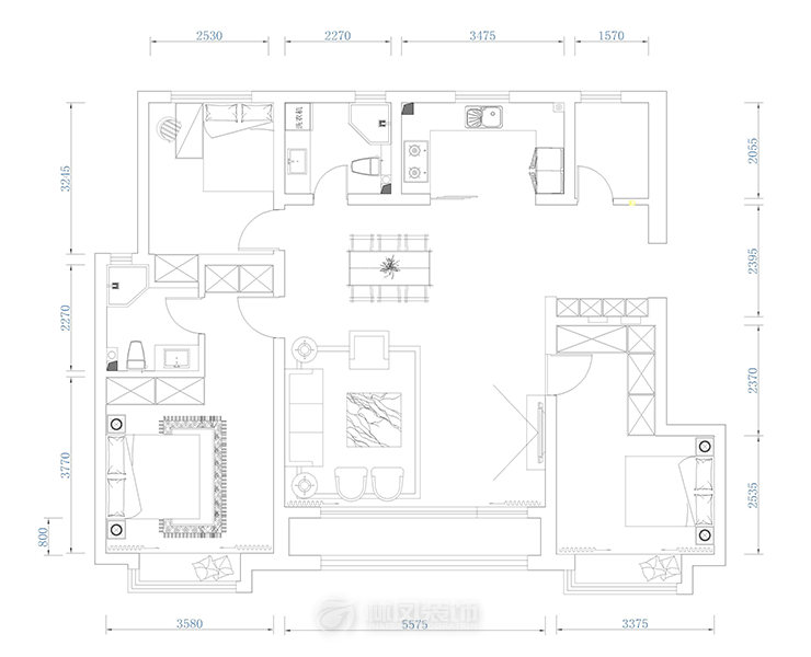
户型图
第1张
龙湖中铁建云璟-130平-现代简约-客厅.png 龙湖中铁建云璟-130平-现代简约-客厅3.png 龙湖中铁建云璟-130平-现代简约-客厅2.png

客厅说明:开放式的大厅设计给人以通透之感,客厅暖色系地砖将总体的餐厅客厅厨房相接,起到连贯效果,落地窗可以最大程度的引入自然光线。

龙湖中铁建云璟-130平-现代简约-北卧.png 龙湖中铁建云璟-130平-现代简约-主卧.png 龙湖中铁建云璟-130平-现代简约-客卧.png

主卧室说明:卧室白色壁纸墙面,温馨好打理。木质床头舒适柔软,床头棚面虚光设计,让卧室增加温馨效果

龙湖中铁建云璟-130平-现代简约-卫生间.png 龙湖中铁建云璟-130平-现代简约-主卫.png

卫生间说明:卫生间墙面铺设暖色瓷砖,使空间呈现高档大气的效果,洗漱柜为暖色理石台面温馨且好打理,与墙砖相呼应。

龙湖中铁建云璟-130平-现代简约-厨房.png

厨房说明:餐厅与厨房相连接,呈现出餐厅空间明亮宽大的效果,底柜设计表现简约风格。

龙湖中铁建云璟-130平-现代简约-玄关.png 龙湖中铁建云璟-130平-现代简约-平面图.png

案例设计师

贺博文

设计师:贺博文

从业时间:20年

设计理念:有限空间、无限艺术

预约设计师

算算你家装修多少钱

报名即享丰厚赠品,享半价装修

免费报价
咨询热线:400-656-9909
20190221103704574636.jpg

精品设计案例

20180612134930523248.jpg 服务号二维码.jpg