立即预约 立即预约
免费定制整装家居

免费定制整装家居

一站置家 全程无忧 一省到底
hide.png

当前位置: 首页 > 装修案例效果图 > 阳光一百

阳光一百 95平 现代简约风格效果图

收藏
案例风格 现代简约 案例户型 三居 案例面积 95平米
楼盘名称 阳光一百 设计师 王禹厶 案例类型 改善性住宅

设计理念:本案是现代风格,现代风格是以简洁的表现形式来满足人们对空间环境的那种感性的需求,简单的设计,但是又能满足主人对空间,颜色,造型等等方面的满足,没有明度或者纯度高的颜色,主要是以灰白色为主,给人的感觉是非常放松的设计手法。

客厅
第1张
第2张
第3张
第4张
餐厅
第1张
卫生间
第1张
厨房
第1张
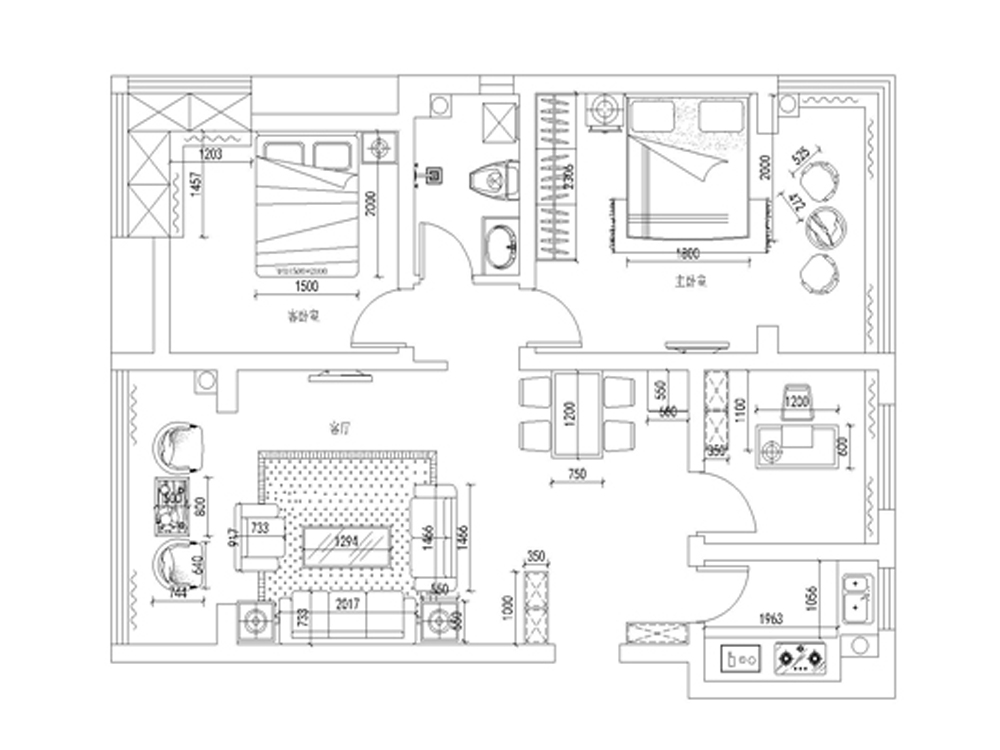
户型图
第1张
  • 案例详情

王禹厶-阳光一百95平-现代风格-客厅.jpg 王禹厶-阳光一百95平-现代风格-客厅2.jpg 王禹厶-阳光一百95平-现代风格-客厅3.jpg 王禹厶-阳光一百95平-现代风格-客厅4.jpg

客厅简单的直线吊棚,灰色布艺沙发,使整体空间十分的干净,白色砖艺硅藻泥背景墙搭配风扇式吊灯使客厅整体空间简约不简单。

王禹厶-阳光一百95平-现代风格-餐厅.jpg

白色烤漆餐桌,灰色椅背与客厅整体空间相协调,一气呵成。

王禹厶-阳光一百95平-现代风格-卫生间.jpg

卫生间墙砖选择米黄色系列的砖,米白色卫浴,去卫生间时心情都特别好.

王禹厶-阳光一百95平-现代风格-厨房.jpg

由于厨房空间狭长,所以颜色搭配上较统一,地砖采用白色,橱柜采用烤漆材质,美观又便打理。

王禹厶-阳光一百95平-现代风格-平面图.jpg

案例设计师

王禹厶

设计师:王禹厶

从业时间:10年

设计理念:坚持原创,坚持一切美好

预约设计师

算算你家装修多少钱

报名即享丰厚赠品,享半价装修

免费报价
咨询热线:400-656-9909
20190221103704574636.jpg

精品设计案例

20180612134930523248.jpg 服务号二维码.jpg