立即预约 立即预约
免费定制整装家居

免费定制整装家居

一站置家 全程无忧 一省到底
hide.png

当前位置: 首页 > 装修案例效果图 > 华润公元九里|奶油风

华润公元九里|奶油风 121平 现代简约风格效果图

收藏
案例风格 现代简约 案例户型 三居 案例面积 121平米
楼盘名称 华润公元九里 设计师 沈阳林凤装饰 案例类型 改善性住宅

设计理念:设计师整体设计理念:本案设计风格为现代风格,整体色调以黑白灰为主,线条简约,整体空间简洁明快,为业主在空间营造出一种时尚而有质感的家居环境。

客厅
第1张
第2张
第3张
餐厅
第1张
卧室
第1张
第2张
卫生间
第1张
第2张
厨房
第1张
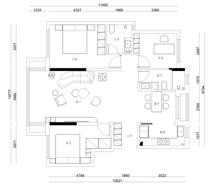
户型图
第1张
华润公元九里-121-现代风格-客厅.jpg 华润公元九里-121-现代风格-客厅3.jpg 华润公元九里-121-现代风格-首图.jpg

客厅说明: 此空间采用了小面积黑色的点缀,加上金属质感的单椅搭配地毯,为空间在质感强烈的对比下打造其时尚与硬朗的感受。

华润公元九里-121-现代风格-餐厅.jpg

餐厅说明:餐厅主要通过延续客厅的感觉,搭配了皮质椅加理石台面也是希望用统一的质感对比手法,达成空间的一致性。

华润公元九里-121-现代风格-客卧.jpg 华润公元九里-121-现代风格-主卧.jpg

卧室说明:主卧采用米灰色定制衣柜搭配黑色睡床的设计,让整体浅色空间有了一丝稳重,让原本明亮的卧室有了宁静的睡眠感受。

华润公元九里-121-现代风格-客卫.jpg 华润公元九里-121-现代风格-主卫.jpg

卫生间说明:卫生间在材质选择了柔光砖,减少水渍的产生,也会和卫浴产品产生质感的对比,色彩上也选用了较深的系列也是为了突出色彩对比,达到干净整洁的空间感受

华润公元九里-121-现代风格-厨房.jpg

厨房说明:既然整体空间采用黑白灰的色彩搭配,那橱柜下深上浅的搭配,更加突出了色彩主题,让原本油烟满布的空间变得干净清透的效果,相信在此空间的业主也会有惬意的烹饪体验。

华润公元九里-121-现代风格-平面图.jpg

案例设计师

沈阳林凤装饰

设计师:沈阳林凤装饰

从业时间:12年

设计理念:我们不是艺术家,我们只是用艺术的手法来做实用的东西。

预约设计师

算算你家装修多少钱

报名即享丰厚赠品,享半价装修

免费报价
咨询热线:400-656-9909
20190221103704574636.jpg

精品设计案例

20180612134930523248.jpg 服务号二维码.jpg