立即预约 立即预约
免费定制整装家居

免费定制整装家居

一站置家 全程无忧 一省到底
hide.png

当前位置: 首页 > 装修案例效果图 > 莫奈花园|新中式风格

莫奈花园|新中式风格 220平 新中式风格效果图

收藏
案例风格 新中式 案例户型 四居 案例面积 220平米
楼盘名称 莫奈花园 设计师 张景新 案例类型 改善性住宅

设计理念:本案建筑面积220平米,根据业主需求设计了新中式风格,多选用自然材料使其来达到平衡和宁静的气氛。

客厅
第1张
第2张
餐厅
第1张
卧室
第1张
第2张
第3张
卫生间
第1张
第2张
厨房
第1张
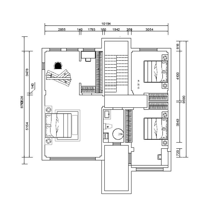
户型图
第1张
第2张
莫奈小镇-220㎡-现代风格-客厅沙发背景墙.jpg 莫奈小镇-220㎡-现代风格-客厅电视背景墙.jpg

客厅说明:沙发背景墙设计部分墙板带有墨山效果,点亮主题偏新中式,又采用浅色墙板搭配设计墙板,使其并不突兀,墙板整体设计搭配非常柔顺,客厅整体多采用深色系可让整体稳重大气。

莫奈小镇-220㎡-现代风格-餐厅.jpg 莫奈小镇-220㎡-现代风格-主卧室.jpg 莫奈小镇-220㎡-新中式风格-客卧室.jpg 莫奈小镇-220㎡-新中式风格-女孩房.jpg

卧室说明:在卧室中放置了电脑桌,可以满足日常居家办公需求

莫奈小镇-220㎡-现代风格-二层卫生间.jpg 莫奈小镇-220㎡-现代风格-一层卫生间.jpg

卫生间说明:主卫的镜子使用了异型设计,看起来非常有观赏性,后面采用线性灯,且淋浴房采用干湿分离,保障整个空间的干燥

莫奈小镇-220㎡-现代风格-厨房.jpg

厨房说明:U性台的设计满足了客户对大厨房的需求,嵌入式冰箱和大面积的橱柜增加了收纳空间,并设有6人位餐桌,可多人聚餐,实现空间合理化。

莫奈小镇-220㎡-新中式风格-二层·户型图.jpg 莫奈小镇-220㎡-新中式风格-一层·户型图.jpg

案例设计师

张景新

设计师:张景新

从业时间:6年

设计理念:合理的划分空间,让设计融入生活,营造自然,品味,格调

预约设计师

算算你家装修多少钱

报名即享丰厚赠品,享半价装修

免费报价
咨询热线:400-656-9909
20190221103704574636.jpg

精品设计案例

20180612134930523248.jpg 服务号二维码.jpg