立即预约 立即预约
免费定制整装家居

免费定制整装家居

一站置家 全程无忧 一省到底
hide.png

当前位置: 首页 > 装修案例效果图 > 和平之门|奶油风格

和平之门|奶油风格 112平 其他风格效果图

收藏
案例风格 其他 案例户型 三居 案例面积 112平米
楼盘名称 和平之门 设计师 毛娇 案例类型 改善性住宅

设计理念:设计理念:奶油风格奶油风以奶咖色,打底,整体采用,低饱和度]的色彩,空间整体呈现出被细腻的奶油包裹着的氛围感

客厅
第1张
第2张
第3张
餐厅
第1张
卧室
第1张
第2张
卫生间
第1张
厨房
第1张
休闲区
第1张
门厅
第1张
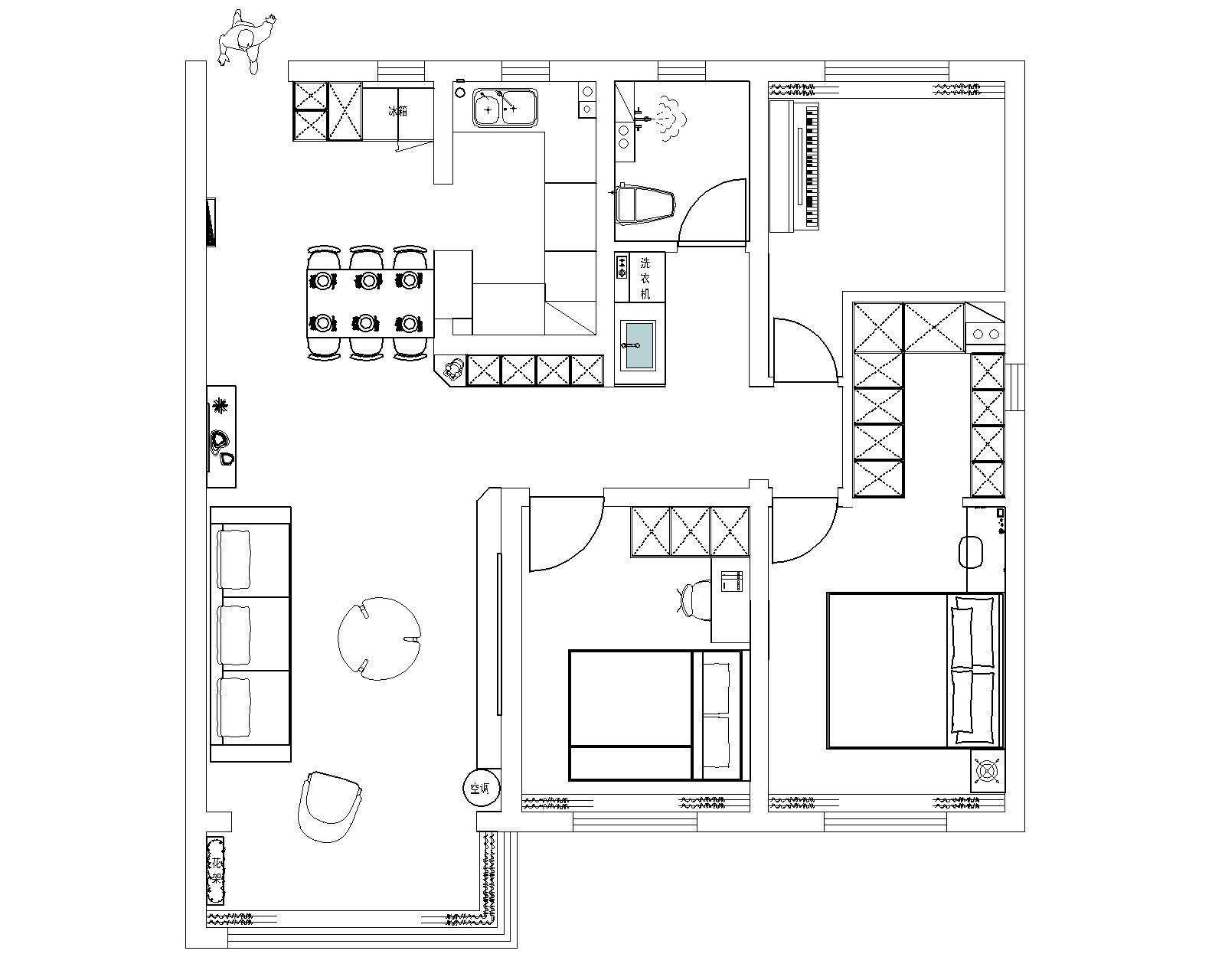
户型图
第1张
和平之门-112平-奶油风格-客厅.png 和平之门-112平-奶油风格-客厅1.png 和平之门-112平-奶油风格-客厅背景墙.png

客厅:空间布局强调简洁开阔,注重光线的运用,让整个空间明亮而通透。搭配上造型简约而精致的灯具,使灯光也成为营造氛围的重要元素。

和平之门-112平-奶油风格-餐厅.png

餐厅:奶油风还注重细节的装饰,比如摆放一些艺术画作、小巧的绿植等,为空间增添生机与艺术气息。餐厅与厨房相连,方便家人间的交流互动。

和平之门-112平-奶油风格-主卧.png 和平之门-112平-奶油风格-次卧.png

卧室:柔和的色调和质感材料,打造宁静的睡眠环境。合理安排储物空间,保持卧室的整洁和私密。

和平之门-112平-奶油风格-卫生间.png

卫生间:选用防滑材料和高品质卫浴设备,提升安全性和舒适度。

和平之门-112平-奶油风格-厨房.png

厨房:高效便捷:现代化的设计和高效的储物方案,最大化利用每一寸空间。配置先进的厨房电器,提升烹饪效率

和平之门-112平-奶油风格-钢琴房.png 和平之门-112平-奶油风格-玄关.png 和平之门-28#1-8-1平面.jpg

案例设计师

毛娇

设计师:毛娇

从业时间:15年

设计理念:形式追随功能

预约设计师

算算你家装修多少钱

报名即享丰厚赠品,享半价装修

免费报价
咨询热线:400-656-9909
20190221103704574636.jpg

精品设计案例

20180612134930523248.jpg 服务号二维码.jpg