立即预约 立即预约
免费定制整装家居

免费定制整装家居

一站置家 全程无忧 一省到底
hide.png

当前位置: 首页 > 装修案例效果图 > 润悦湾|意式极简风格

润悦湾|意式极简风格 120平 现代简约风格效果图

收藏
案例风格 现代简约 案例户型 四居 案例面积 120平米
楼盘名称 润悦湾 设计师 慈英雪 案例类型 改善性住宅

设计理念:意式极简风整体比较简洁,但决不随意,用于装饰的墙面设计和家居线条优美,在简洁的外表下,给人一种低调奢华有内涵的感觉。意式极简,从设计风格上来说同时拥有着浪漫的古典风和极简的现代风两张迷人的面孔,艺术与生活功能紧密结合,让家独具品味又温馨舒适。

客厅
第1张
第2张
第3张
餐厅
第1张
卧室
第1张
第2张
第3张
卫生间
第1张
厨房
第1张
休闲区
第1张
过廊
第1张
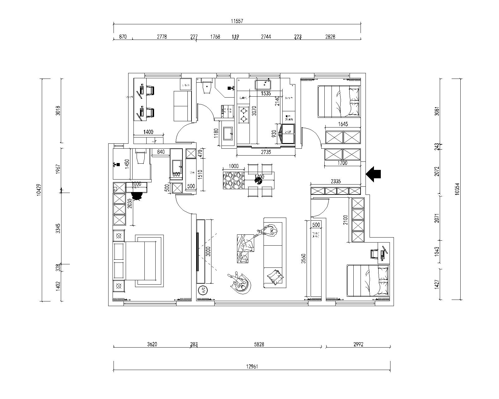
户型图
第1张
慈英雪设计-润悦湾-120平-意式极简-电视背景墙.jpg 慈英雪设计-润悦湾-120平-意式极简-客餐厅.jpg 慈英雪设计-润悦湾-120平-意式极简-沙发背景墙.jpg

客厅采用了开放式设计,兼具了水吧台的功能,形成了合理的动线设计和流畅的活动空间的同时又增加了储物与展示空间。

慈英雪设计-润悦湾-120平-意式极简-客餐厅.jpg 慈英雪设计-润悦湾-120平-意式极简-北次卧.jpg 慈英雪设计-润悦湾-120平-意式极简-主卧.jpg 慈英雪设计-润悦湾-120平-意式极简-南次卧.jpg

卧室的氛围以温润为主,主卧柜体采用奶油色与木色色拼接色,搭配意式极简的家具,和木色的护墙板,营造明亮氛围的同时也营造温馨的视觉效果,增加了房间的档次,彰显主人的品味。

慈英雪设计-润悦湾-120平-意式极简-主卫.jpg

柜体统一采用哑光木色,灰色,与白色岩板实现一体式效果,空间呈现出哑光质感,墙砖采用了大砖,通铺的铺贴方式使得整个空间不会过于沉重,增加了客户的居住体验。

慈英雪设计-润悦湾-120平-意式极简-厨房.jpg

意式极简风格的厨房,既要考虑空间的合理动线,又要有意式的优雅与格调。

慈英雪设计-润悦湾-120平-意式极简-电竞房.jpg 慈英雪设计-润悦湾-120平-意式极简-玄关.jpg -润悦湾120平施工图-模型.jpg

案例设计师

慈英雪

设计师:慈英雪

从业时间:8年

设计理念:做有情感的设计,做符合生活方式的设计,无限优化生活空间

预约设计师

算算你家装修多少钱

报名即享丰厚赠品,享半价装修

免费报价
咨询热线:400-656-9909
20190221103704574636.jpg

精品设计案例

20180612134930523248.jpg 服务号二维码.jpg