立即预约 立即预约
免费定制整装家居

免费定制整装家居

一站置家 全程无忧 一省到底
hide.png

当前位置: 首页 > 装修案例效果图 > 保利茉莉公馆|现代风格

保利茉莉公馆|现代风格 115平 现代简约风格效果图

收藏
案例风格 现代简约 案例户型 三居 案例面积 115平米
楼盘名称 保利茉莉公馆 设计师 王杰 案例类型 儿童房

设计理念:整体空间硬装,简单干净直爽
软装温柔,质感细腻高级
软硬装相互协调,色调统一

客厅
第1张
第2张
第3张
餐厅
第1张
卧室
第1张
第2张
第3张
卫生间
第1张
第2张
厨房
第1张
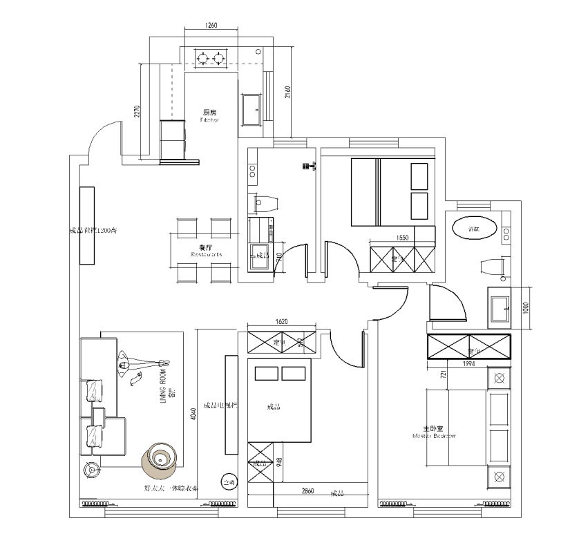
户型图
第1张
保利茉莉公馆115㎡现代风格-客厅1 .jpg 保利茉莉公馆115㎡现代风格-客厅 .jpg 保利茉莉公馆115㎡现代风格-客厅2 .jpg

暖灰色亮光地砖配套深色家具,深浅搭配

保利茉莉公馆115㎡现代风格-餐厅 .jpg 保利茉莉公馆115㎡现代风格-客卧 .jpg 保利茉莉公馆115㎡现代风格-客卧.jpg 保利茉莉公馆115㎡现代风格-主卧.jpg

卧室套房形式,增加衣帽间功能

保利茉莉公馆115㎡现代风格-卫生间2 .jpg 保利茉莉公馆115㎡现代风格-卫生间 .jpg 保利茉莉公馆115㎡现代风格-厨房 .jpg

满足洗切炒的功能外,尽量储物多一些,开放式厨房配色与客厅衔接

保利茉莉公馆115㎡现代风格-平面图.png

案例设计师

王杰

设计师:王杰

从业时间:7年

设计理念:因生活而设计,因设计而完美。

预约设计师

算算你家装修多少钱

报名即享丰厚赠品,享半价装修

免费报价
咨询热线:400-656-9909
20190221103704574636.jpg

精品设计案例

20180612134930523248.jpg 服务号二维码.jpg