立即预约 立即预约
免费定制整装家居

免费定制整装家居

一站置家 全程无忧 一省到底
hide.png

当前位置: 首页 > 装修案例效果图 > 黎明广场小区

黎明广场小区 140平 现代简约风格效果图

收藏
案例风格 现代简约 案例户型 三居 案例面积 140平米
楼盘名称 黎明广场小区 设计师 林凤装饰设计师 案例类型 婚房

设计理念:简洁和有用是现代精约个性的基本特色。精约个性现已大行其道几年了,依然坚持很猛的气势,这是由于人们装饰时总期望在经济、有用、舒适的一起,表现必定的文化品味。

客厅
第1张
第2张
第3张
第4张
第5张
餐厅
第1张
卧室
第1张
第2张
卫生间
第1张
厨房
第1张
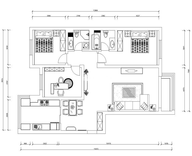
户型图
第1张
  • 案例详情

黎明广场-140㎡-现代简约风格-客厅(5).jpg 黎明广场-140㎡-现代简约风格-客厅(4).jpg 黎明广场-140㎡-现代简约风格-客厅(3).jpg 黎明广场-140㎡-现代简约风格-客厅(6).jpg 黎明广场-140㎡-现代简约风格-客厅(8).jpg

客厅规划选用简约现代的个性是思维追求和精力兴趣的直接反映,它与自个的文化背景和家庭涵养的基础上,规划有自个特色的居室个性。在建立个性以后,又思考到布局以完成特定需要的个性情调沙发环绕着茶几,沙发独立成组靠在一角,给人一种舒服安静的感觉。电视墙的装修我选用了石膏板造型和AB版的壁纸搭配,经过白色乳胶漆石膏板造型的相衬托,充分利用了房体的高度,营建了视觉上高敞宽广的效果。吊顶只简略做了一个直线外型,突显简练流通的规划个性。

黎明广场-140㎡-现代简约风格-餐厅(7).jpg

在餐桌的墙面上摆放一些装饰画,以达到增加餐厅的情调。而餐桌上的绿色植物,则起到了画龙点睛的作用,使环境充满生机与活力,

黎明广场-140㎡-现代简约风格-主卧(2).jpg 黎明广场-140㎡-现代简约风格-主卧(1).jpg

主卧室是睡眠、休息、最具私隐性的空间。采用的原木色的地板和家具更接近与大自然,在选用AB版的壁纸来衬托,更能体现出在餐桌的墙面上摆放一些装饰画,以达到增加餐厅的情调。

黎明广场-140㎡-现代简约风格-次卫生间(1).jpg 黎明广场-140㎡-现代简约风格-厨房(1).jpg

厨房功用是贮存日子必备,为日常日子供给餐饮的确保。按厨房的功用可分为以 下区域:贮存、洗刷和烹调。思考表现厨房的功用性。由于厨房空间细长,底柜规划侧重表现精约个性,尽管方式看似简略,但每个抽屉内部是不尽相同的使用各种内置式抽屉和金属拉蓝,给主人供给了便利的操作空间。

黎明广场-140㎡-现代简约风格-平面布置图.jpg

案例设计师

林凤装饰设计师

设计师:林凤装饰设计师

从业时间:5年

设计理念:艺术源与设计,设计原与生活,用心去体会,用心去感受

预约设计师

算算你家装修多少钱

报名即享丰厚赠品,享半价装修

免费报价
咨询热线:400-656-9909
20190221103704574636.jpg

精品设计案例

20180612134930523248.jpg 服务号二维码.jpg