立即预约 立即预约
免费定制整装家居

免费定制整装家居

一站置家 全程无忧 一省到底
hide.png

当前位置: 首页 > 装修案例效果图 > 泊岸华庭|现代风格

泊岸华庭|现代风格 100平 现代简约风格效果图

收藏
案例风格 现代简约 案例户型 三居 案例面积 100平米
楼盘名称 泊岸华庭 设计师 姜宇 案例类型 改善性住宅

设计理念:本案设计整体以明亮与简约为主,让空间显得明亮且大方的同时,空间利用率达到最大化使用。

客厅
第1张
第2张
餐厅
第1张
卧室
第1张
第2张
第3张
卫生间
第1张
厨房
第1张
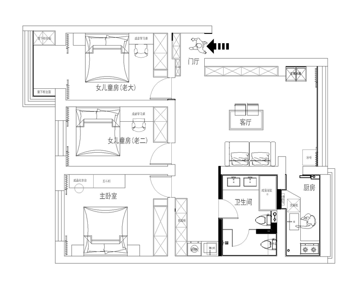
户型图
第1张
泊岸华庭-100平-现代风格-客厅 .jpg 泊岸华庭-100平-现代风格-首图 .jpg

本案居住的业主为一家四口,由于整体空间不太大,所以注重空间明亮度及实用。

泊岸华庭-100平-现代风格-餐厅 .jpg

餐厅空间与客厅共用,所以在沙发对面处加了开放式书架与封闭式柜子的组合,让原本单调的空间带一些时尚的感觉。

泊岸华庭-100平-现代风格-女儿房 .jpg 泊岸华庭-100平-现代风格-女儿房1 .jpg 泊岸华庭-100平-现代风格-主卧.jpg

主卧的设计也是以白色为主,稍加一点灰色做些点缀,加上靠墙的装饰画和吊灯,显得卧室不会那么单调,而且也捎带了一点点的时尚感且明亮。

泊岸华庭-100平-现代风格-卫生间 .jpg

卫生间的设计由整体一个空间变成干湿分离设计,这样无论是洗手去卫生间和洗澡,互不影响,增加卫生间的功能性,再搭配白色系的墙砖,地砖和白色与原木色悬空式的浴室柜,空间显得大的同时也不会那么单调,而且这样看着干净且好打理卫生。

泊岸华庭-100平-现代风格-厨房.jpg

本案是开放式厨房,由于厨房面积较小,所以墙砖和橱柜都采用白色组合,这样让空间更加明亮,厨房台面在入门处做了切边,这样不会影响过道且有一定安全性。

泊岸华庭-100平-现代风格-户型图 .jpg

案例设计师

姜宇

设计师:姜宇

从业时间:18年

设计理念:适合人居舒适的环境设计才是好设计

预约设计师

算算你家装修多少钱

报名即享丰厚赠品,享半价装修

免费报价
咨询热线:400-656-9909
20190221103704574636.jpg

精品设计案例

20180612134930523248.jpg 服务号二维码.jpg